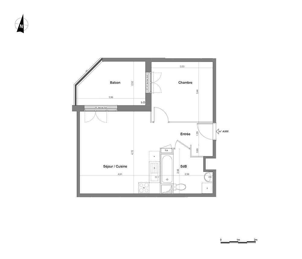
Appartement T2 n°A305 à Savigny-le-Temple (77176)
Prix : nous consulter
La Résidence du Chateau à Savigny-le-Temple
À noter
- Savigny-le-Temple
- Livraison 1er trimestre 2028
- Résidence principale/secondaire
- Investissement locatif
- Votre suivi personnalisé Peterson.fr
- Garanti prix direct promoteur
Prestations et équipements
À propos du programme
Située à proximité du Domaine de La Grange-la-Prévôté, notre nouvelle réalisation dialogue avec le château tout proche. Majestueuses, ses façades rythmées, aux multiples matériaux et variations de couleurs, empruntent le style architectural classique et se voient couronnées d’une toiture à la mansart.
La résidence se compose d’appartements neufs du studio au 5 pièces dont quelques duplex s’ouvrant, pour la grande majorité des logements, sur un espace extérieur dont certaines vastes terrasses aux derniers étages.
Savigny-le-Temple
En travaux

Accédez à notre page dédiée au programme "La Résidence du Chateau" pour tout savoir sur la résidence, ses prestations et son quartier.
Autres biens disponibles
Du nouveau dans l'immobilier avec le programme « La Résidence du Château »
Le programme immobilier neuf « La Résidence du Château » se situe à Savigny-le-Temple. Ce projet, c'est 27 appartements neufs. Ils sont de type T2, T3 et T4 et pourront être occupés à titre de résidence principale ou secondaire mais se prêtent également à l'investissement locatif. Ils sont éligibles au dispositif Pinel, et seront achevés fin décembre 2025.


