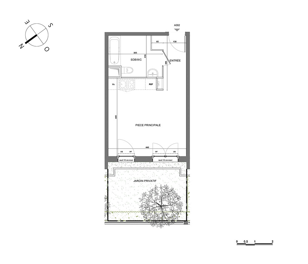
Appartement T1 n°A002 à Mantes-la-Ville (78200)
Prix : nous consulter
Le Camélinat à Mantes-la-Ville
À noter
- Mantes-la-Ville
 - Livraison 3ème trimestre 2026
 - Résidence principale/secondaire
 - Investissement locatif
 
- Votre suivi personnalisé Peterson.fr
 - Garanti prix direct promoteur
 
Prestations et équipements
À propos du programme
Cette nouvelle adresse se déploie au cœur d’un quartier résidentiel, à proximité des commerces et services du quotidien pour vous offrir la possibilité de tout vivre à pied ! Profitez de cet emplacement de qualité, à seulement 600 m* de la gare « Mantes-Station » qui accueillera prochainement le RER E et vous permettra de rejoindre le quartier d’affaires de La Défense en seulement 40 min. Les établissements scolaires (de la maternelle au lycée), le marché couvert de Mantes-la-Ville, les boulangeries, les pharmacies et la salle de sport se trouvent tous dans un rayon de 800 m* autour de la résidence.
La résidence est composée de beaux appartements déclinés du studio au 4 pièces. Dotés de tout le confort du neuf, certains appartements bénéficient d’une double orientation pour assurer une belle luminosité toute l’année. La plupart des logements s’ouvrent sur un espace extérieur, qu’il s’agisse d’un jardin privatif, d’un balcon ou d’une vaste terrasse en attique. Les habitants de la résidence pourront, également, profiter d’une magnifique terrasse végétalisée accessible en toiture.
Mantes-la-Ville
En travaux

Accédez à notre page dédiée au programme "Le Camélinat" pour tout savoir sur la résidence, ses prestations et son quartier.
Autres biens disponibles
« Le Camélinat », le nouveau programme immobilier
Le projet « Le Camélinat » est un programme neuf installé à Mantes-la-Ville. Au cœur de ce projet, on retrouve 17 appartements neufs. Ils sont de type T2 et T3 et sont en mesure de faire office de résidence principale ou secondaire et d'investissement locatif. À la fin de l'année 2025, ils seront terminés et vous pouvez aussi noter qu'ils sont éligibles au dispositif Pinel.



