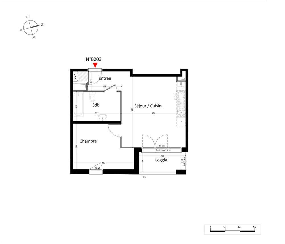
Appartement T2 n°B203 à Stains (93240)
Prix : nous consulter
Parenthèse à Stains
À noter
- Stains
- Livraison 4ème trimestre 2027
- Résidence principale/secondaire
- Investissement locatif
- Votre suivi personnalisé Peterson.fr
- Garanti prix direct promoteur
Prestations et équipements
À propos du programme
Parfaitement connectée aux grands pôles économiques, Stains offre un emplacement stratégique combinant dynamisme urbain et qualité de vie. Notre nouvelle résidence « Parenthèse » s’implante dans un environnement résidentiel privilégié, à proximité immédiate des commerces et services essentiels : supermarché, pharmacie, salle de sport et centre médical, tous facilement accessibles en voiture. Les familles apprécieront également la présence d’un groupe scolaire regroupant école maternelle et primaire, situé à seulement 4 minutes en voiture, simplifiant le quotidien des parents et des enfants.
La résidence bénéficie d’une excellente desserte en transports en commun, garantissant des déplacements fluides au sein de la métropole. La gare RER D de Garges-Sarcelles, accessible en 3 minutes à vélo, permet de rejoindre Paris Châtelet en seulement 30 minutes. De plus, l’arrêt de bus « Les Prévoyants », au pied de la résidence, ainsi que les lignes de tramway desservant la ville, assurent une connexion rapide aux pôles stratégiques de Stains et des communes environnantes.
Nichée au cœur du quartier calme et résidentiel de l’Avenir, Parenthèse propose des appartements du 2 au 4 pièces, tous prolongés par un espace extérieur pour profiter pleinement du cadre environnant. Côté équipements, la résidence met à disposition des places de stationnement ainsi que deux locaux à vélos, garantissant confort et sécurité au quotidien.
Stains
En travaux

Accédez à notre page dédiée au programme "Parenthèse" pour tout savoir sur la résidence, ses prestations et son quartier.
Autres biens disponibles
Explorez le nouveau programme immobilier « Parenthèse »
« Parenthèse » est un projet immobilier neuf. Il se situe à Stains. Ce projet propose toujours 24 de ses 24 appartements neufs qui ne sont pas encore réservés. De type T2, T3 et T4, ils s'adressent aux personnes qui veulent se diriger vers un investissement locatif ainsi qu'à celles qui cherchent une résidence principale ou secondaire. Remarquez que les logements sont éligibles au dispositif de droit commun et seront prêts à être livrés à la fin de l'année 2027.
Investissez malin !
Ce programme peut bénéficier de nombreux avantages financiers adaptés à votre projet immobilier neuf :
Je recherche un bien pour...



