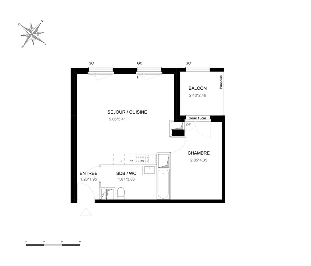
Appartement T2 n°A201 à Ivry-sur-Seine (94200)
Prix : nous consulter
Ivry Confluences 2 à Ivry-sur-Seine
À noter
- Ivry-sur-Seine
 - Livraison 2ème trimestre 2028
 - Résidence principale/secondaire
 - Investissement locatif
 
- Votre suivi personnalisé Peterson.fr
 - Garanti prix direct promoteur
 
Prestations et équipements
À propos du programme
C'est un quartier de nouvelle génération très en vue qui accueille le programme immobilier neuf Les Nouveaux Constructeurs : Ivry Confluences. Ici, vous bénéficiez d'accès rapides sur le boulevard périphérique, l'A4 et l'A86, de la proximité du RER C, de l'arrivée imminente du TZen 5* et prolongement de la ligne 10 du métro en cours d'étude. Ce programme RE 2020 s'anime d'un agréable jardin de contemplation en coeur d'îlot et d'une terrasse commune avec potager partagé.
Ivry-sur-Seine
En travaux

Accédez à notre page dédiée au programme "Ivry Confluences 2" pour tout savoir sur la résidence, ses prestations et son quartier.
Autres biens disponibles
En ce qui concerne le nouveau projet immobilier « Ivry Confluences 2 »
Le programme immobilier « Ivry Confluences 2 », qui propose des biens neufs, est installé à Ivry-sur-Seine. Ce projet immobilier propose 74 maisons et appartements et duplex, tous neufs, et 74 d'entre eux sont encore sur le marché. Allant du T2 au T5, ils peuvent faire office de résidence principale ou secondaire mais sont aussi adaptés pour un investissement locatif. Il est important de noter que les logements sont éligibles au dispositif de droit commun. Pour prendre possession des lieux, cela sera possible au 2e trimestre 2028.
Investissez malin !
Ce programme peut bénéficier de nombreux avantages financiers adaptés à votre projet immobilier neuf :
Je recherche un bien pour...



