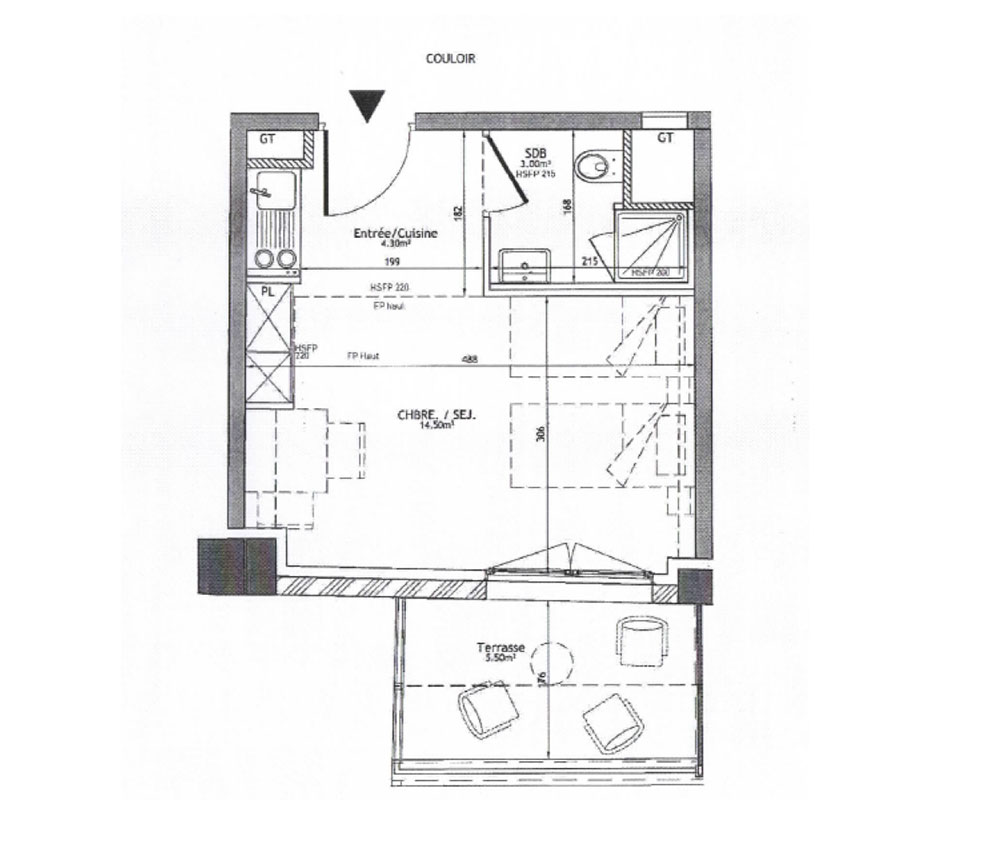
Appartement T1 n°114 à Lyon (69005)
Prix : nous consulter
Staycity Garibaldi à Lyon
À noter
- Lyon
- 4ème trimestre 2016
- Investissement locatif
- Votre suivi personnalisé Peterson.fr
- Garanti prix direct promoteur
Ce programme propose des biens éligibles aux dispositifs de défiscalisation suivant :
À propos du programme
Idéalement située à Lyon, la résidence bénéficie d’un emplacement stratégique à proximité immédiate des commerces et du parc Blandan. À seulement 2 km de la colline de Fourvière, elle permet de rejoindre facilement les quartiers d’affaires et les sites culturels emblématiques de la ville tels que le Musée des Beaux-Arts, le Musée des Tissus et des Arts décoratifs ou encore le Musée Miniature. La résidence se trouve également à proximité de la gare Lyon Jean Macé et d’un arrêt de tramway, à moins de 2 km de la Part-Dieu et de la gare de Lyon Perrache, et à 10 km de l’aéroport de Lyon-Bron.
Parfaitement adaptée aux séjours professionnels comme aux déplacements prolongés, la résidence propose 143 appartements modernes et confortables, du studio pour 2 personnes au T2 pouvant accueillir jusqu’à 5 personnes. Tous disposent d’une cuisine équipée pour une autonomie totale. Les résidents bénéficient également d’un ensemble de services dédiés au confort et à la détente : petit-déjeuner sous forme de buffet, salle de sport et parking privé.

Accédez à notre page dédiée au programme "Staycity Garibaldi" pour tout savoir sur la résidence, ses prestations et son quartier.





