Les Balcons de JadeLes Balcons de JadeLes Balcons de JadeLes Balcons de Jade
Les Balcons de Jade
Les Balcons de Jade
Les Balcons de Jade
Les Balcons de Jade

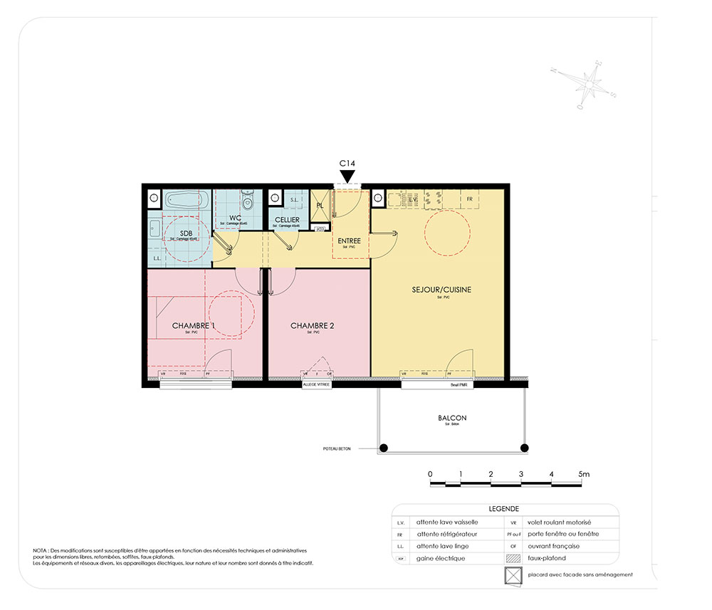
Appartement T3 n°C14 à Laventie (62840)

Prix : nous consulter

Laventie (62840)

Les Balcons de Jade à Laventie

Appartement
T3 / F3 / 3 pièces
69,85 m² habitables
1er étage
Ouest
2 chambres
Station. 1
Balcon 10 m²

À noter

  • Laventie
  • Livraison 4ème trimestre 2027
  • Résidence principale/secondaire
  • Investissement locatif
  • Votre suivi personnalisé Peterson.fr
  • Garanti prix direct promoteur

Prestations et équipements

Parking
Terrasse / Balcon

À propos du programme

Découvrez une résidence élégante et moderne au coeur de Laventie : Les Balcons de Jade.

Du 2 au 4 pièces, ces appartements sont pensés pour offrir confort, luminosité et fonctionnalité. Les séjours sont spacieux avec de larges ouvertures et chaque logement se prolonge par un balcon, une terrasse ou un jardin privatif.

Conformes à la réglementation RE2020, ils assurent une excellente performance thermique en toute saison.

La résidence garantit bien-être et confort grâce à sa sécurité renforcée avec vidéophone, son ascenseur, son hall d'entrée soigné, son local vélos, ses aménagements paysagers de qualité et ses stationnements privatifs.

En travaux

Livraison 4ème trimestre 2027

Accédez à notre page dédiée au programme "Les Balcons de Jade" pour tout savoir sur la résidence, ses prestations et son quartier.

Autres biens disponibles

Aperçu du programme neuf « Les Balcons de Jade »

Laventie dispose du programme immobilier neuf « Les Balcons de Jade ». 12 sont encore disponibles parmi les 12 appartements neufs qui sont proposés dans ce projet. Allant du T2 au T4, ils s'adressent autant aux intéressés par l'investissement locatif qu'aux personnes à la recherche d'une résidence principale ou secondaire. Remarquez que les biens sont éligibles au dispositif de droit commun et seront prêts à être livrés à la fin de l'année 2027.

Appartement 2 pièces
4 biens disponibles
N° de lot
Surface
Commodités
Étage
Exposition
Lot n°C11C11
45 m²
Parking, Terrasse / Balcon
Étage 1
Exposition : EstEst
Lot n°C13C13
48 m²
Parking, Terrasse / Balcon
Étage 1
Exposition : OuestOuest
Lot n°C21C21
45 m²
Parking, Terrasse / Balcon
Étage 2
Exposition : EstEst
Lot n°C31C31
43 m²
Parking, Terrasse / Balcon
Étage 3
Exposition : EstEst
N° de lot
Surface
Commodités
Étage
Exposition
Lot n°C02C02
68 m²
Parking, Jardin, Terrasse / Balcon
RDC
Exposition : Sud-estSud-est
Lot n°C06C06
68 m²
Parking, Jardin, Terrasse / Balcon
RDC
Exposition : EstEst
Lot n°C12C12
68 m²
Parking, Terrasse / Balcon
Étage 1
Exposition : Sud-estSud-est
Lot n°C15C15
70 m²
Parking, Terrasse / Balcon
Étage 1
Exposition : OuestOuest
Lot n°C17C17
68 m²
Parking, Terrasse / Balcon
Étage 1
Exposition : EstEst
Lot n°C22C22
68 m²
Parking, Terrasse / Balcon
Étage 2
Exposition : Sud-estSud-est
Lot n°C24C24
70 m²
Parking, Terrasse / Balcon
Étage 2
Exposition : OuestOuest
Lot n°C25C25
70 m²
Parking, Terrasse / Balcon
Étage 2
Exposition : OuestOuest
Lot n°C27C27
68 m²
Parking, Terrasse / Balcon
Étage 2
Exposition : EstEst
Lot n°C32C32
63 m²
Parking, Terrasse / Balcon
Étage 3
Exposition : Sud-estSud-est
Lot n°C37C37
66 m²
Parking, Terrasse / Balcon
Étage 3
Exposition : EstEst
N° de lot
Surface
Commodités
Étage
Exposition
Lot n°C03C03
93 m²
Parking, Jardin, Terrasse / Balcon
RDC
Exposition : Sud-ouestSud-ouest
Lot n°C05C05
92 m²
Parking, Jardin, Terrasse / Balcon
RDC
Exposition : Nord-ouestNord-ouest
Lot n°C16C16
91 m²
Parking, Terrasse / Balcon
Étage 1
Exposition : OuestOuest
Lot n°C26C26
91 m²
Parking, Terrasse / Balcon
Étage 2
Exposition : OuestOuest
Lot n°C33C33
88 m²
Parking, Terrasse / Balcon
Étage 3
Exposition : OuestOuest
Lot n°C36C36
84 m²
Parking, Terrasse / Balcon
Étage 3
Exposition : OuestOuest