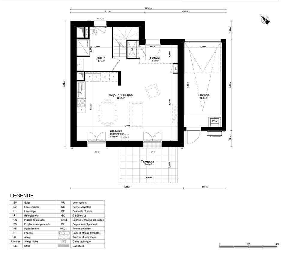
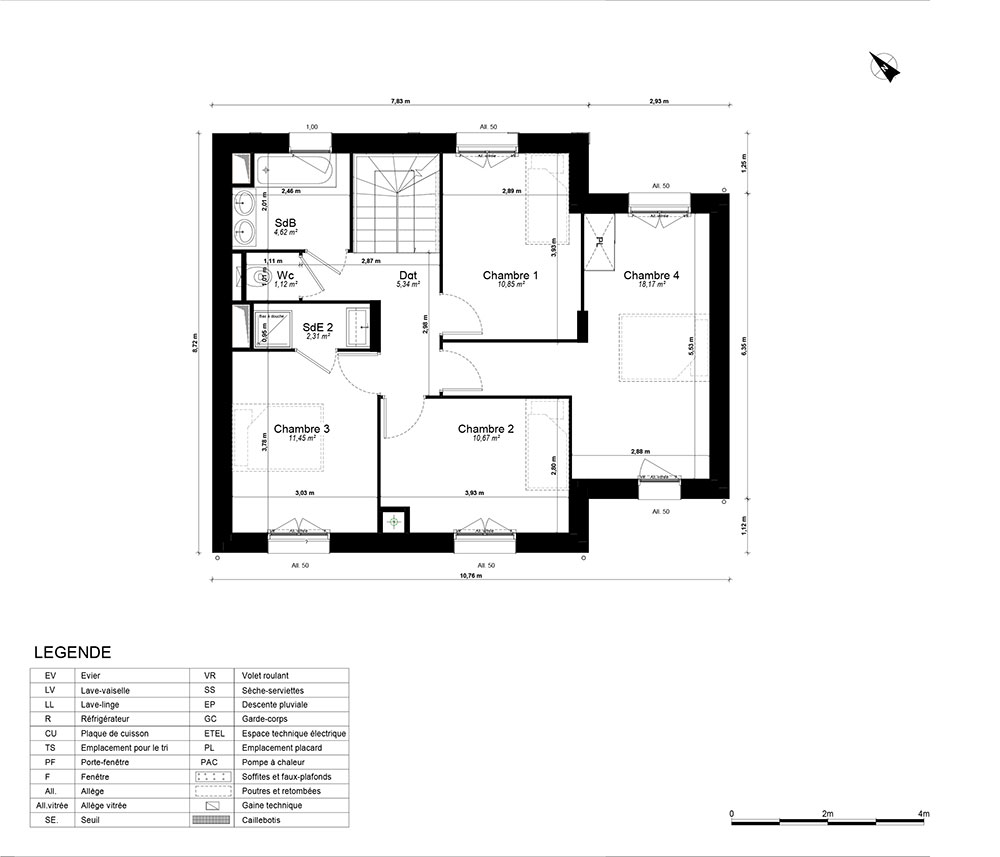
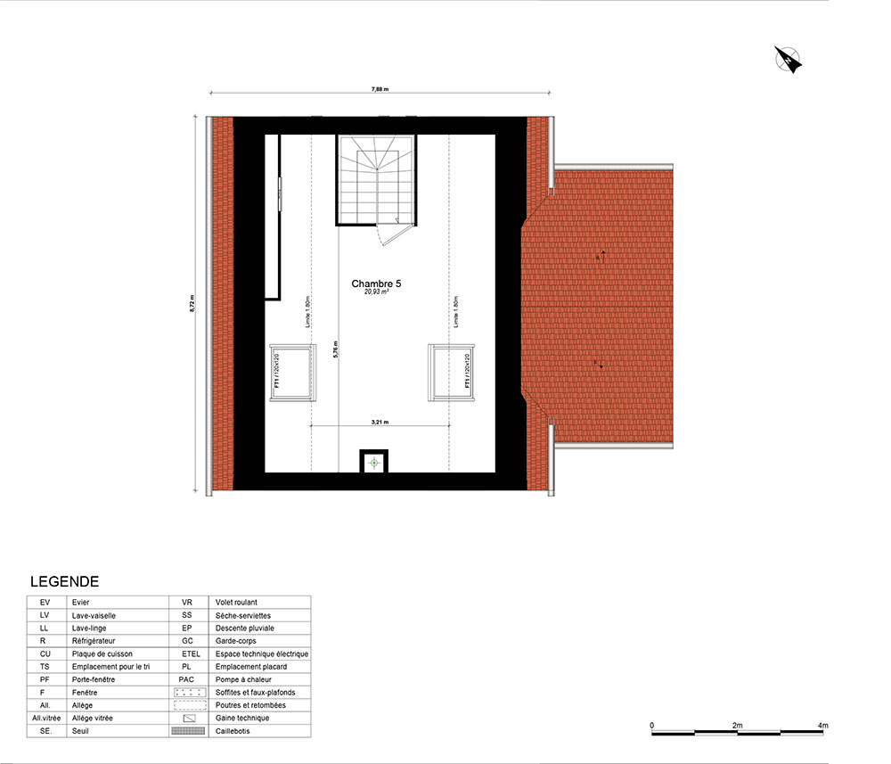
Appartement T6 n°MA12 à Montesson (78360)
Prix : nous consulter
Domaine de la Plaine à Montesson
À noter
- Montesson
- Livraison 4ème trimestre 2027
- Résidence principale/secondaire
- Investissement locatif
- Votre suivi personnalisé Peterson.fr
- Garanti prix direct promoteur
Prestations et équipements
À propos du programme
En parfaite intégration dans son environnement pavillonnaire, et en lisière de la plaine agricole de Montesson, ce nouveau quartier résidentiel sera composé de maisons individuelles et d’un petit immeuble collectif. Situé à quelques minutes en vélo du centre-ville de Montesson, la réalisation profite également d’un accès rapide à la gare de Sartrouville.
Montesson
En travaux

Accédez à notre page dédiée au programme "Domaine de la Plaine" pour tout savoir sur la résidence, ses prestations et son quartier.
Autres biens disponibles
« Domaine de la Plaine » : le nouveau projet immobilier se dévoile
Le programme immobilier « Domaine de la Plaine », qui offre des biens neufs, est installé à Montesson. 10 appartements neufs sont inclus dans ce projet et il en reste aujourd'hui 10 disponibles. De type T6, ils conviendront en même temps aux besoins d'une recherche en résidence principale ou secondaire ainsi qu'à ceux d'un investissement locatif. Il est important de noter que les biens sont éligibles au dispositif de droit commun. Pour prendre possession des lieux, cela sera possible à la fin de l'année 2027.






