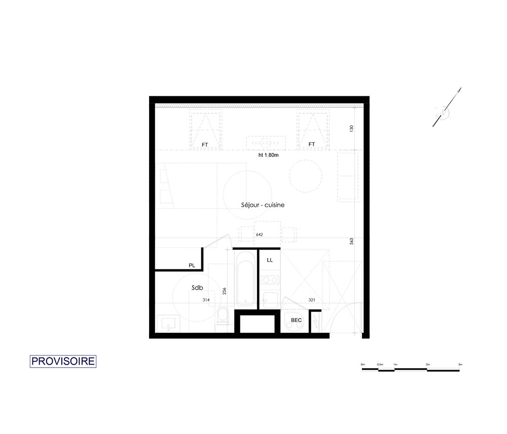
Appartement T1 n°A212 à La Roche-sur-Yon (85000)
Prix : nous consulter
Studio 27 à La Roche-sur-Yon
À noter
- La Roche-sur-Yon
- Résidence principale/secondaire
- Investissement locatif
- Votre suivi personnalisé Peterson.fr
- Garanti prix direct promoteur
À propos du programme
Pensé pour les investisseurs en quête de simplicité, STUDIO 27 offre un produit quasi-géré :
- Meublé, prêt à louer (avec option mobilier)
- Loyer attractif et faible vacance locative
- Demande structurelle soutenue par la croissance étudiante
- Forte valorisation dans le temps grâce à la rareté des petites surfaces en centre-ville
Un placement immobilier sûr, lisible et durable, au service de la performance locative. Un aménagement intelligent qui fait gagner en confort, tout en restant attractif en termes de loyer.
La Roche-sur-Yon

Accédez à notre page dédiée au programme "Studio 27" pour tout savoir sur la résidence, ses prestations et son quartier.
Autres biens disponibles
Venez explorer « Studio 27 »
« Studio 27 » est un programme immobilier neuf situé à La Roche-sur-Yon. 2 appartements neufs sont inclus dans ce projet. À l'heure actuelle, 2 d'entre eux restent toujours disponibles. Ils peuvent parfaitement faire office de résidence principale ou secondaire ou même d'investissement locatif et sont de type T1 et T1 bis. Il est intéressant de souligner qu'ils sont éligibles au dispositif de droit commun.


