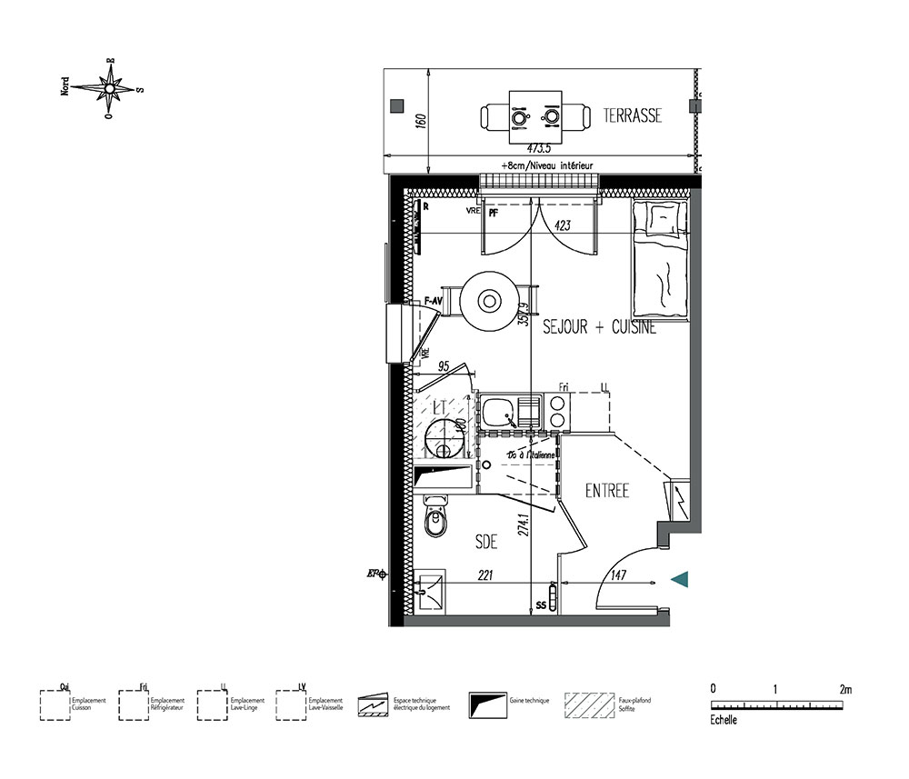
Appartement T1 n°1024 à Saint-Vincent-de-Paul (40990)
Prix : nous consulter
Résidence Via Vigna à Saint-Vincent-de-Paul
À noter
- Saint-Vincent-de-Paul
- Livraison 3ème trimestre 2027
- Résidence principale/secondaire
- Investissement locatif
- Votre suivi personnalisé Peterson.fr
- Garanti prix direct promoteur
Prestations et équipements
À propos du programme
Votre nouvelle résidence proche de Bordeaux !Notre résidence Via Vigna, se trouve à Saint-Vincent-de-Paul, à seulement 10 minutes de Bordeaux, en plein coeur du vignoble, entre la Garonne et la Dordogne. Conçu en Ywood résidentiel, ce programme à taille humaine, offre à ses résidents un cadre de vie des plus agréables. Avec des matériaux vertueux et performants, les logements du T1 bis au T3, bénéficient tous d'un DPE classe A et d'espace extérieur pour le confort de ses occupants. Territoire économiquement dynamique, Bordeaux Métropole saura séduire par ses nombreux atouts.
Saint-Vincent-de-Paul
En travaux

Accédez à notre page dédiée au programme "Résidence Via Vigna" pour tout savoir sur la résidence, ses prestations et son quartier.
Autres biens disponibles
Introduction au projet neuf « Résidence Via Vigna »
Saint-Vincent-de-Paul bénéficie du projet immobilier neuf « Résidence Via Vigna ». 22 appartements neufs sont inclus dans ce programme et il en reste actuellement 22 disponibles. Allant du T1 au T3, ils se destinent plutôt aux personnes intéressées par l'investissement locatif mais conviennent également pour investir dans une résidence principale ou secondaire. Sachez que les biens seront livrés à la fin de l'année 2026 et qu'ils sont éligibles au dispositif de droit commun.
