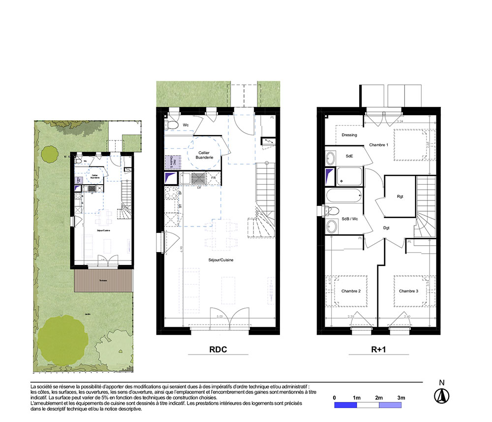
Appartement T4 n°V008 à Blagnac (31700)
Prix : nous consulter
Aria à Blagnac
À noter
- Blagnac
- Livraison 4ème trimestre 2027
- Résidence principale/secondaire
- Investissement locatif
- Votre suivi personnalisé Peterson.fr
- Garanti prix direct promoteur
Prestations et équipements
À propos du programme
À quelques pas du parc Odyssud, à proximité immédiate du centre-ville de Blagnac et de l’aéroport aisément accessible à pied, Sporting Aria s’épanouit au sein d’un cadre privilégié : un environnement à la fois résidentiel, dynamique et en pleine transformation. Une adresse rare, nichée au cœur d’un secteur recherché pour son art de vivre et son essor économique.
Composée de deux bâtiments à taille humaine et de plusieurs villas, la résidence propose des logements du T2 au T5, pensés pour s’adapter à toutes les envies et à tous les modes de vie. Son architecture contemporaine, inspirée par la nature environnante, s’intègre avec élégance et sobriété dans le paysage du quartier.
Chaque logement bénéficie de stationnements privatifs, en sous-sol ou en extérieur, tandis que des locaux vélos ont été aménagés pour encourager les mobilités douces.
Blagnac
En travaux

Accédez à notre page dédiée au programme "Aria" pour tout savoir sur la résidence, ses prestations et son quartier.
Autres biens disponibles
« Aria » : le nouveau projet immobilier se dévoile
Le programme immobilier neuf « Aria » se situe à Blagnac. Ce projet immobilier propose 19 duplex et appartements, tous neufs, et 19 d'entre eux sont encore sur le marché. De type T2, T3, T4 et T5, ils correspondront tant à un investissement locatif qu'à une résidence principale ou secondaire. Les biens sont prévus au 2e trimestre 2028 et sont éligibles aux dispositifs de droit commun et LMNP (loueur en meublé non professionnel) hors bail commercial.


