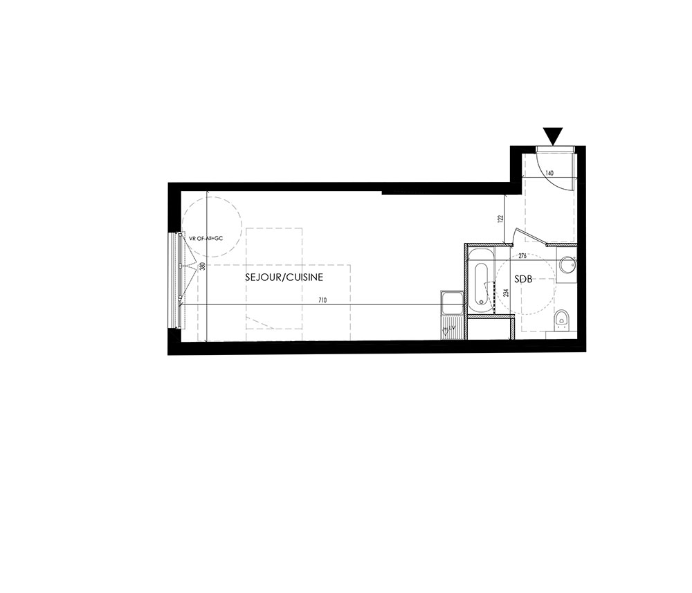
Appartement T1 n°15 à Chaville (92370)
Prix : nous consulter
Coeur Chaville à Chaville
À noter
- Chaville
- Livraison 2ème trimestre 2028
- Résidence principale/secondaire
- Investissement locatif
- Votre suivi personnalisé Peterson.fr
- Garanti prix direct promoteur
À propos du programme
A deux pas de la Mairie et de la place du marché de Chaville, Quartus vous propose 10 appartements de standing au sein d’une nouvelle résidence intimiste. Découvrez votre nouvelle résidence « Cœur Chaville », élégante et lumineuse. Du studio au 5 pièces, les appartements disposent pour la plupart d’un espace extérieur : terrasse, balcon, jardin privatif ou rooftop. Pensés avec soin, ils sont tous dotés d’une cave et bénéficient de prestations de grande qualité : parquet massif, WC suspendus, menuiseries extérieures en bois, volets roulants électriques. Idéalement située à 50m des commerces, de la Mairie et à moins de 500m des gares « Chaville Rive Droite » (lignes L et U) et « Chaville Rive Gauche » (Ligne N), cette nouvelle réalisation saura vous séduire grâce à son architecture délicatement sculptée, alliant bois enduit et plaquettes, et validée par l’Architecte des Bâtiments de France. Devenez propriétaire de votre appartement neuf d’exception dès maintenant.
Chaville
En travaux

Accédez à notre page dédiée au programme "Coeur Chaville" pour tout savoir sur la résidence, ses prestations et son quartier.
Autres biens disponibles
Un aperçu du nouveau programme immobilier « Cœur Chaville »
Le projet immobilier neuf « Cœur Chaville » se situe à Chaville. Ce programme dispose de 3 appartements neufs. De type T3 et T4, ils sont adaptés à l'investissement locatif mais peuvent également convenir pour une résidence principale ou secondaire. Ils seront livrés fin mars 2026, au terme des travaux, et sont éligibles au dispositif Pinel.



