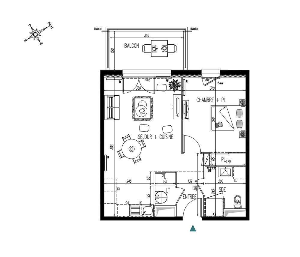
Appartement T2 n°1209 à Saint-Martin-de-Seignanx (40390)
Prix : nous consulter
Olatua à Saint-Martin-de-Seignanx
À noter
- Saint-Martin-de-Seignanx
- Livraison 3ème trimestre 2027
- Résidence principale/secondaire
- Investissement locatif
- Votre suivi personnalisé Peterson.fr
- Garanti prix direct promoteur
Prestations et équipements
À propos du programme
Votre nouveau programme près de BayonneDécouvrez l'essence des Landes, un quotidien d'exception dans un environnement raffiné et préservé. Bénéficiez d'une adresse confidentielle au coeur du centre-ville de St Martin de Seignanx, à proximité immédiate de Bayonne et à seulement 10km des plages ! Programme à seulement 15 minutes de la gare TGV de Bayonne (Paris, à 4h en train) - 25 minutes de l'aéroport de Biarritz - 40 minutes de la frontière espagnole. Entreprises du secteur : labeyrie, scalandes (centrale achat groupement Leclerc), maïsadour, delpeyrat, etc.
Saint-Martin-de-Seignanx
En travaux

Accédez à notre page dédiée au programme "Olatua" pour tout savoir sur la résidence, ses prestations et son quartier.
