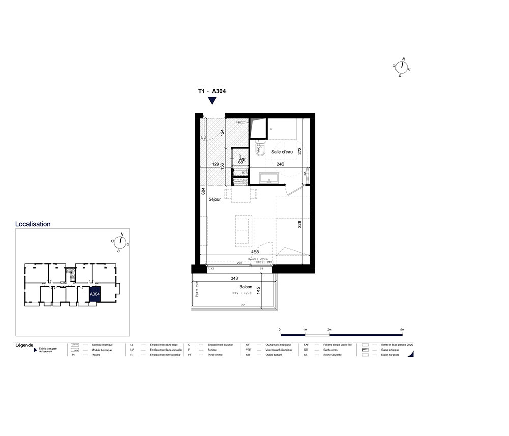
Appartement T1 n°A304 à Béthune (62400)
Prix : nous consulter
Equilibre à Béthune
À noter
- Béthune
- Livraison 4ème trimestre 2027
- Résidence principale/secondaire
- Investissement locatif
- Votre suivi personnalisé Peterson.fr
- Garanti prix direct promoteur
Prestations et équipements
À propos du programme
Venez bénéficier des frais de notaire offerts et jusqu'à 15.000 euros de remise pour les 10 premiers réservataires! Ouverture de la commercialisation le 15 octobre. Contactez notre conseillère pour en savoir plus !
Votre futur logement neuf du T1 au T5 dans une résidence élégante et économe en énergie, et donc à faible charges.
Profitez d'un confort de vie idéal, à proximité immédiate des commerces, écoles et transports.
Bénéficiez de la TVA réduite à 5,5 %, du Prêt à Taux Zéro et de nombreuses aides et remises exceptionnelles pour concrétiser votre projet immobilier !
Pour vous, investisseurs en LMNP ou nu : un emplacement porteur et un rendement pouvant atteindre 6% pour un placement serein dans le neuf.
Béthune
En travaux

Accédez à notre page dédiée au programme "Equilibre" pour tout savoir sur la résidence, ses prestations et son quartier.
Autres biens disponibles
Découvrez le nouveau programme immobilier « Equilibre »
Béthune reçoit le projet immobilier neuf « Equilibre ». 40 appartements neufs sont compris dans ce projet. En ce moment, 40 d'entre eux sont toujours disponibles. Allant du Studio au T5, ils conviendront à l'investissement locatif et peuvent également faire office de résidence principale ou secondaire. Éligibles aux dispositifs LMNP (loueur en meublé non professionnel) hors bail commercial et de droit commun, les biens seront livrés à la fin de l'année 2027.
Investissez malin !
Ce programme peut bénéficier de nombreux avantages financiers adaptés à votre projet immobilier neuf :
Je recherche un bien pour...


