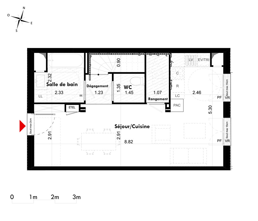
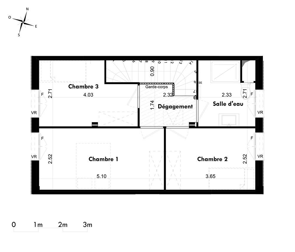
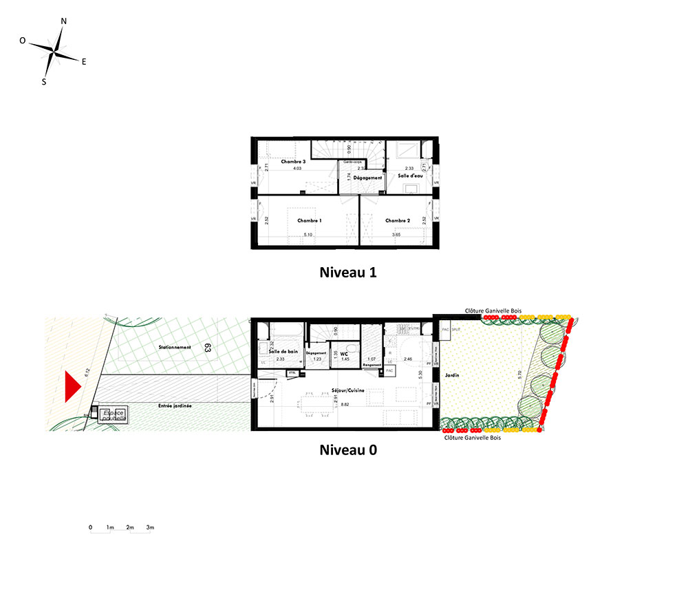
Maison T0 n°M07 à Gargenville (78440)
Prix : nous consulter
Les Sarments à Gargenville
À noter
- Gargenville
- Livraison 1er trimestre 2028
- Résidence principale/secondaire
- Investissement locatif
- Votre suivi personnalisé Peterson.fr
- Garanti prix direct promoteur
Prestations et équipements
À propos du programme
« Les Sarments » : Le bien chez soi ! Un projet au confort durable qui se distingue par son mode constructif innovant : une construction modulaire en bois naturel qui intègre la technologie Vestack. En copromotion avec ce spécialiste de la construction hors-site et bas-carbone. Idéalement situé, le projet est au coeur d'un quartier résidentiel et il est à proximité immédiate de la gare (5 min à pied). Il se compose d'appartements allant du 2 au 4 pièces ainsi que des maisons de 4 et 5 pièces. « Les Sarments » a de nombreux atouts majeurs comme des logements traversants Est-Ouest, un coeur d'îlot végétalisé et la garantie des labellisations RE2020 avec l'atteinte du seuil 2028 (supérieur au seuil réglementaire 2025), Label biodivercity, NF Habitat et Biosourcé de niveau 3. Ce projet se distingue par l'orientation des bâtiments qui maximise l'ensoleillement et dégage des vues lointaines. Votre quotidien sera idyllique !
Gargenville
En travaux

Accédez à notre page dédiée au programme "Les Sarments" pour tout savoir sur la résidence, ses prestations et son quartier.
Autres biens disponibles
Introduction au programme neuf « Les Sarments »
Le programme immobilier « Les Sarments », qui offre des biens neufs, est implanté à Gargenville. Ce projet représente 54 maisons et duplex et appartements neufs. À l'heure actuelle, 54 d'entre eux sont toujours disponibles. Allant du T2 au T4, ils vous permettront d'investir dans une résidence principale ou secondaire ou bien de vous lancer dans un investissement locatif. Fin mars 2028, les logements seront achevés et notez qu'ils sont éligibles au dispositif de droit commun.



