ColombusColombusColombusColombus
Colombus
Colombus
Colombus
Colombus

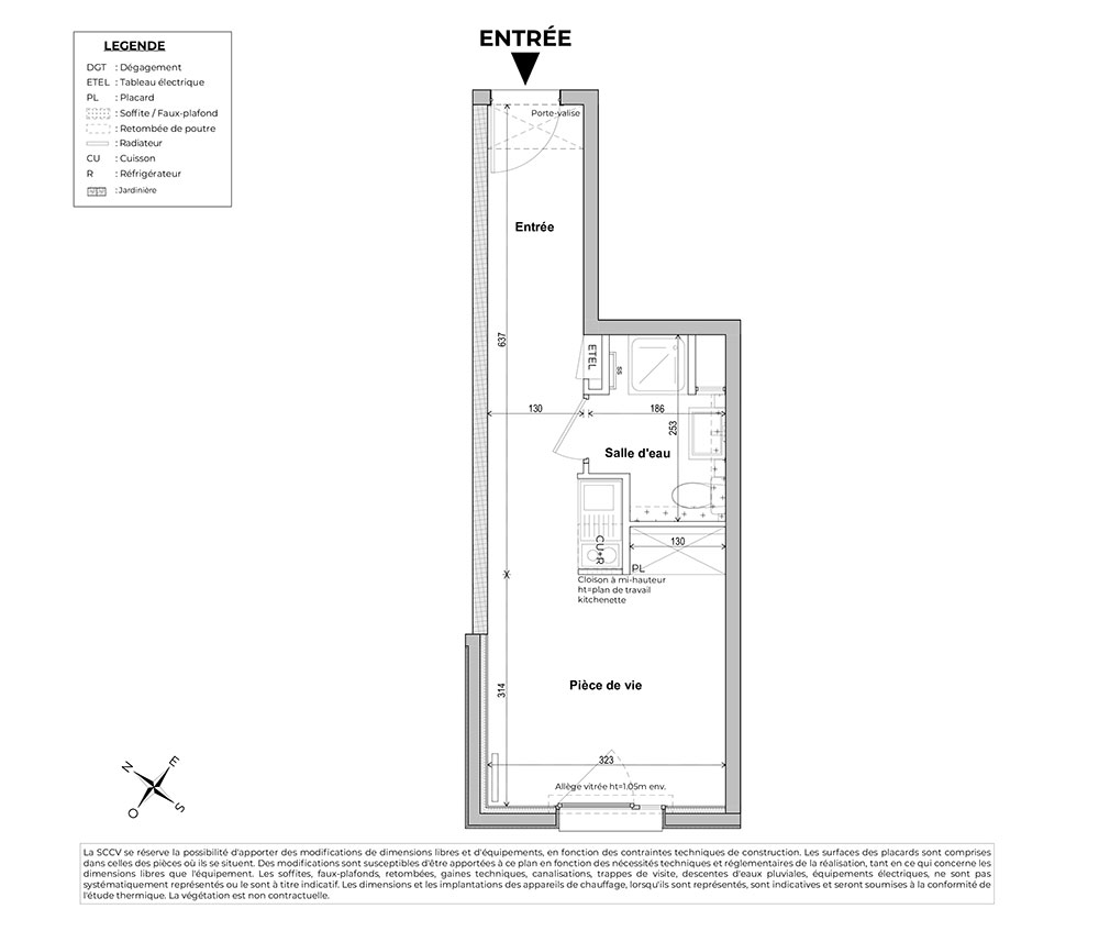
Appartement T1 n°CH121 à Colombes (92700)

Prix : nous consulter

Colombes (92700)

Colombus à Colombes

Appartement
T1 / F1 / 1 pièce
23,62 m² habitables
1er étage
Sud-ouest
0 chambre

À noter

  • Colombes
  • Livraison 4ème trimestre 2027
  • Résidence principale/secondaire
  • Investissement locatif
  • Votre suivi personnalisé Peterson.fr
  • Garanti prix direct promoteur

À propos du programme

.

En travaux

Livraison 4ème trimestre 2027

Accédez à notre page dédiée au programme "Colombus" pour tout savoir sur la résidence, ses prestations et son quartier.

Autres biens disponibles

Tout savoir sur le programme neuf « Colombus »

Le programme immobilier neuf « Colombus » s'intègre à Colombes. Ce projet compte 73 appartements neufs et 73 d'entre eux restent encore sur le marché. De type T1 et T2, ils s'adressent autant aux intéressés par l'investissement locatif qu'aux personnes à la recherche d'une résidence principale ou secondaire. Notez que les logements sont éligibles au dispositif de droit commun et seront achevés fin décembre 2027.

Appartement 1 pièce
71 biens disponibles
N° de lot
Surface
Commodités
Étage
Exposition
Lot n°CH102CH102
19 m²
Étage 1
Exposition : SudSud
Lot n°CH103CH103
19 m²
Étage 1
Exposition : SudSud
Lot n°CH104CH104
17 m²
Terrasse / Balcon
Étage 1
Exposition : Nord-ouestNord-ouest
Lot n°CH105CH105
18 m²
Terrasse / Balcon
Étage 1
Exposition : Nord-ouestNord-ouest
Lot n°CH106CH106
18 m²
Terrasse / Balcon
Étage 1
Exposition : Nord-ouestNord-ouest
Lot n°CH107CH107
19 m²
Terrasse / Balcon
Étage 1
Exposition : Nord-ouestNord-ouest
Lot n°CH108CH108
18 m²
Terrasse / Balcon
Étage 1
Exposition : Nord-ouestNord-ouest
Lot n°CH110CH110
18 m²
Terrasse / Balcon
Étage 1
Exposition : Nord-estNord-est
Lot n°CH112CH112
19 m²
Terrasse / Balcon
Étage 1
Exposition : Nord-estNord-est
Lot n°CH113CH113
19 m²
Terrasse / Balcon
Étage 1
Exposition : Nord-estNord-est
Lot n°CH114CH114
19 m²
Terrasse / Balcon
Étage 1
Exposition : Nord-estNord-est
Lot n°CH115CH115
18 m²
Terrasse / Balcon
Étage 1
Exposition : Nord-estNord-est
Lot n°CH118CH118
19 m²
Terrasse / Balcon
Étage 1
Exposition : Nord-estNord-est
Lot n°CH120CH120
26 m²
Étage 1
Exposition : Sud-ouestSud-ouest
Lot n°CH122CH122
19 m²
Étage 1
Exposition : Sud-ouestSud-ouest
Lot n°CH123CH123
19 m²
Étage 1
Exposition : Sud-ouestSud-ouest
Lot n°CH124CH124
19 m²
Étage 1
Exposition : Sud-ouestSud-ouest
Lot n°CH125CH125
20 m²
Étage 1
Exposition : Sud-ouestSud-ouest
Lot n°CH126CH126
20 m²
Étage 1
Exposition : Sud-ouestSud-ouest
Lot n°CH202CH202
19 m²
Étage 2
Exposition : SudSud
Lot n°CH203CH203
19 m²
Étage 2
Exposition : SudSud
Lot n°CH205CH205
18 m²
Étage 2
Exposition : Nord-ouestNord-ouest
Lot n°CH206CH206
19 m²
Étage 2
Exposition : Nord-ouestNord-ouest
Lot n°CH207CH207
19 m²
Étage 2
Exposition : Nord-ouestNord-ouest
Lot n°CH210CH210
18 m²
Étage 2
Exposition : Nord-estNord-est
Lot n°CH212CH212
19 m²
Étage 2
Exposition : Nord-estNord-est
Lot n°CH213CH213
19 m²
Étage 2
Exposition : Nord-estNord-est
Lot n°CH214CH214
19 m²
Étage 2
Exposition : Nord-estNord-est
Lot n°CH215CH215
18 m²
Étage 2
Exposition : Nord-estNord-est
Lot n°CH218CH218
19 m²
Étage 2
Exposition : Nord-estNord-est
Lot n°CH220CH220
26 m²
Étage 2
Exposition : Sud-ouestSud-ouest
Lot n°CH221CH221
24 m²
Étage 2
Exposition : Sud-ouestSud-ouest
Lot n°CH222CH222
19 m²
Étage 2
Exposition : Sud-ouestSud-ouest
Lot n°CH223CH223
19 m²
Étage 2
Exposition : Sud-ouestSud-ouest
Lot n°CH225CH225
20 m²
Étage 2
Exposition : Sud-ouestSud-ouest
Lot n°CH226CH226
20 m²
Étage 2
Exposition : Sud-ouestSud-ouest
Lot n°CH301CH301
16 m²
Étage 3
Exposition : SudSud
Lot n°CH303CH303
19 m²
Étage 3
Exposition : SudSud
Lot n°CH304CH304
17 m²
Étage 3
Exposition : Nord-ouestNord-ouest
Lot n°CH305CH305
18 m²
Étage 3
Exposition : Nord-ouestNord-ouest
Lot n°CH306CH306
19 m²
Étage 3
Exposition : Nord-ouestNord-ouest
Lot n°CH307CH307
19 m²
Étage 3
Exposition : Nord-ouestNord-ouest
Lot n°CH308CH308
18 m²
Étage 3
Exposition : Nord-ouestNord-ouest
Lot n°CH311CH311
17 m²
Étage 3
Exposition : Nord-estNord-est
Lot n°CH312CH312
19 m²
Étage 3
Exposition : Nord-estNord-est
Lot n°CH313CH313
19 m²
Étage 3
Exposition : Nord-estNord-est
Lot n°CH314CH314
19 m²
Étage 3
Exposition : Nord-estNord-est
Lot n°CH315CH315
19 m²
Étage 3
Exposition : Nord-estNord-est
Lot n°CH316CH316
18 m²
Étage 3
Exposition : Nord-estNord-est
Lot n°CH317CH317
18 m²
Étage 3
Exposition : Nord-estNord-est
Lot n°CH318CH318
19 m²
Étage 3
Exposition : Nord-estNord-est
Lot n°CH321CH321
24 m²
Étage 3
Exposition : Sud-ouestSud-ouest
Lot n°CH322CH322
19 m²
Étage 3
Exposition : Sud-ouestSud-ouest
Lot n°CH323CH323
19 m²
Étage 3
Exposition : Sud-ouestSud-ouest
Lot n°CH324CH324
19 m²
Étage 3
Exposition : Sud-ouestSud-ouest
Lot n°CH325CH325
20 m²
Étage 3
Exposition : Sud-ouestSud-ouest
Lot n°CH326CH326
20 m²
Étage 3
Exposition : Sud-ouestSud-ouest
Lot n°CH401CH401
16 m²
Étage 4
Exposition : SudSud
Lot n°CH402CH402
19 m²
Étage 4
Exposition : SudSud
Lot n°CH403CH403
19 m²
Étage 4
Exposition : SudSud
Lot n°CH406CH406
19 m²
Terrasse / Balcon
Étage 4
Exposition : Nord-ouestNord-ouest
Lot n°CH410CH410
19 m²
Terrasse / Balcon
Étage 4
Exposition : Nord-estNord-est
Lot n°CH411CH411
18 m²
Terrasse / Balcon
Étage 4
Exposition : Nord-estNord-est
Lot n°CH413CH413
30 m²
Étage 4
Exposition : Sud-ouestSud-ouest
Lot n°CH414CH414
19 m²
Étage 4
Exposition : Sud-ouestSud-ouest
Lot n°CH415CH415
19 m²
Étage 4
Exposition : Sud-ouestSud-ouest
Lot n°CH416CH416
19 m²
Étage 4
Exposition : Sud-ouestSud-ouest
Lot n°CH418CH418
20 m²
Étage 4
Exposition : Sud-ouestSud-ouest
Lot n°CH501CH501
16 m²
Étage 5
Exposition : SudSud
Lot n°CH509CH509
23 m²
Étage 5
Exposition : Sud-ouestSud-ouest
Lot n°CH511CH511
20 m²
Étage 5
Exposition : Sud-ouestSud-ouest
N° de lot
Surface
Commodités
Étage
Exposition
Lot n°CH109CH109
40 m²
Terrasse / Balcon
Étage 1
Exposition : Nord-estNord-est