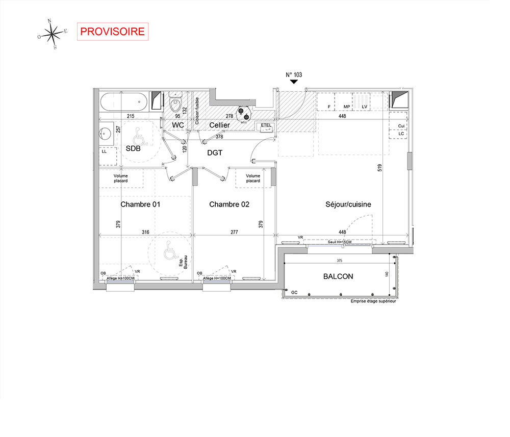
Appartement T3 n°103 à Saint-Nicolas (62223)
Prix : nous consulter
Horizon Scarpe à Saint-Nicolas
À noter
- Saint-Nicolas
- Livraison 4ème trimestre 2027
- Résidence principale/secondaire
- Investissement locatif
- Votre suivi personnalisé Peterson.fr
- Garanti prix direct promoteur
Prestations et équipements
À propos du programme
Découvrez une résidence intimiste à Saint-Nicolas, proposant 44 appartements lumineux du 2 au 3 pièces, profitant tous d’un balcon, d’une terrasse ou d’un jardin. Profitez d’un cadre verdoyant, à proximité des commerces, écoles et transports, et tout proche des bords de la Scarpe. Résidence sécurisée, jardin commun d'agrément, local vélo équipé : tout est pensé pour votre confort. Un programme accessible, idéal pour devenir propriétaire au prix d’un loyer.
Saint-Nicolas
En travaux

Accédez à notre page dédiée au programme "Horizon Scarpe" pour tout savoir sur la résidence, ses prestations et son quartier.
Autres biens disponibles
Concernant le nouveau programme immobilier « Horizon Scarpe »
C'est la ville de Saint-Nicolas qui abrite le projet immobilier « Horizon Scarpe ». Ce dernier propose des biens neufs. 44 appartements neufs sont inclus dans ce projet et il en reste actuellement 42 disponibles. Ils sont de type T2 et T3 et pourront être occupés en tant que résidence principale ou secondaire mais se prêtent aussi à l'investissement locatif. Éligibles aux dispositifs de droit commun et LMNP (loueur en meublé non professionnel) hors bail commercial, les biens seront terminés à la fin de l'année 2027.


