Prim'House MidiPrim'House MidiPrim'House MidiPrim'House Midi
Prim'House Midi
Prim'House Midi
Prim'House Midi
Prim'House Midi

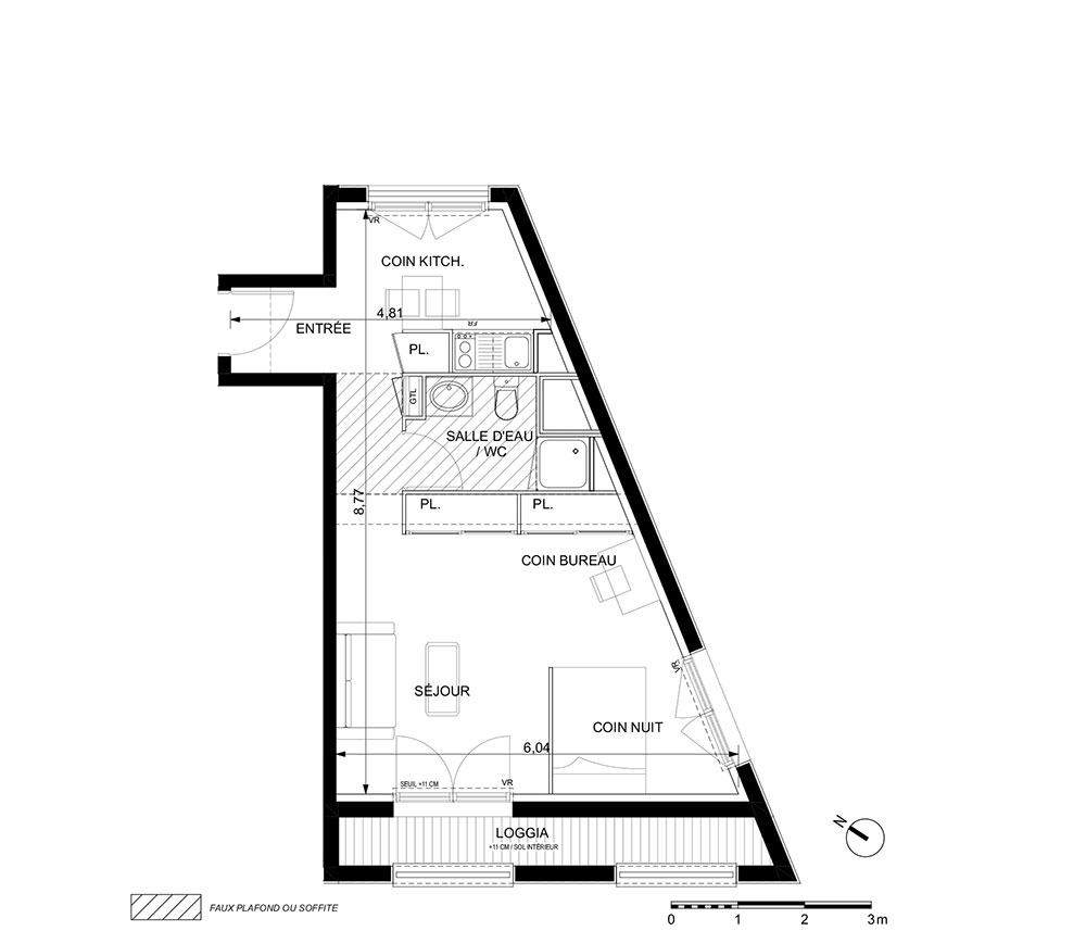
Appartement T1 n°206 à Sud-est (secteur 5) Toulouse (31300)

Prix : nous consulter

Toulouse | Sud-est (secteur 5) (31400)

Prim'House Midi à Sud-est (secteur 5) - Toulouse

Appartement
T1 / F1 / 1 pièce
37,73 m² habitables
2ème étage
Sud-ouest
0 chambre

À noter

  • Toulouse
  • Livraison 2ème trimestre 2027
  • Résidence principale/secondaire
  • Investissement locatif
  • Votre suivi personnalisé Peterson.fr
  • Garanti prix direct promoteur

À propos du programme

.

Sud-est (secteur 5)

En travaux

Livraison 2ème trimestre 2027

Accédez à notre page dédiée au programme "Prim'House Midi" pour tout savoir sur la résidence, ses prestations et son quartier.

Autres biens disponibles

Aperçu du programme neuf « Prim'House Midi »

« Prim'House Midi » est un programme immobilier dans le neuf à Toulouse. Ce projet compte 7 appartements neufs et 7 d'entre eux restent encore disponibles. Ils sont de type T1 et pourront être occupés à titre de résidence principale ou secondaire mais se prêtent également à l'investissement locatif. Vous serez libres de disposer de votre bien, éligible aux dispositifs LMNP (loueur en meublé non professionnel) hors bail commercial et de droit commun, fin juin 2027.

Appartement 1 pièce
4 biens disponibles
N° de lot
Surface
Commodités
Étage
Exposition
Lot n°202202
18 m²
Étage 2
Exposition : Nord-estNord-est
Lot n°208208
22 m²
Étage 2
Exposition : Sud-ouestSud-ouest
Lot n°304304
18 m²
Étage 3
Exposition : Nord-estNord-est
Lot n°309309
23 m²
Étage 3
Exposition : Sud-ouestSud-ouest