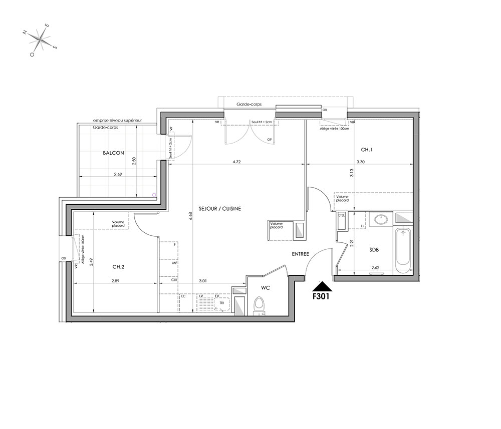
Appartement T3 n°F301 à La Ravoire (73490)
Prix : nous consulter
Linea Parc à La Ravoire
À noter
- La Ravoire
- Livraison 4ème trimestre 2028
- Résidence principale/secondaire
- Investissement locatif
- Votre suivi personnalisé Peterson.fr
- Garanti prix direct promoteur
Prestations et équipements
À propos du programme
Au cœur de La Ravoire, entre Chambéry et Challes-les-Eaux, découvrez une adresse qui conjugue confort, modernité et douceur de vivre. Implantée dans un quartier harmonieux et dynamique, la résidence bénéficie d’un environnement privilégié où tout est accessible à pied ou à vélo. Son architecture contemporaine s'ouvre généreusement sur la lumière et les panoramas environnants, avec un spectaculaire porche sur pilotis, en triple hauteur, qui révèle un mail piétonnier paysager et un cœur d’îlot verdoyant, véritable écrin de nature. Les appartements, du 2 au 4 pièces, ont été pensés pour offrir un confort optimal au quotidien avec des cuisines ouvertes sur des séjours spacieux, des volumes généreux baignés de lumière naturelle et de vastes espaces extérieurs qui prolongent les pièces à vivre. Chaque logement profite de vues dégagées sur les montagnes environnantes, offrant un panorama apaisant et lumineux qui accompagne chaque moment de la journée.
La Ravoire
En travaux

Accédez à notre page dédiée au programme "Linea Parc" pour tout savoir sur la résidence, ses prestations et son quartier.
Autres biens disponibles
Venez explorer « Linea Parc »
La Ravoire est le berceau du projet immobilier neuf « Linea Parc ». 53 appartements neufs sont compris dans ce projet. À l'heure actuelle, 52 d'entre eux restent encore disponibles. Allant du T2 au T4, vous avez la possibilité d'en faire un investissement locatif ou une résidence principale ou secondaire. À la fin de l'année 2028, les logements seront terminés et notez qu'ils sont éligibles aux dispositifs LMNP (loueur en meublé non professionnel) hors bail commercial et de droit commun.




