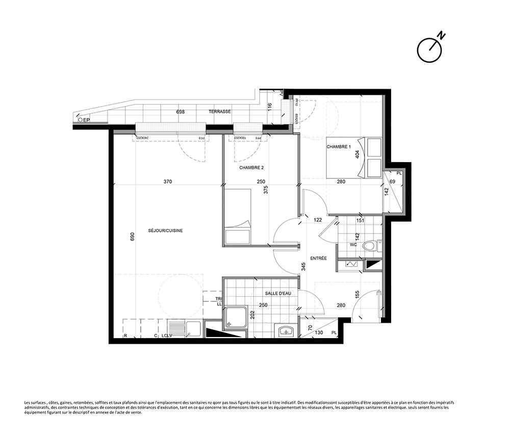
Appartement T3 n°D2108 à Villiers-sur-Marne (94350)
Prix : nous consulter
Le Domaine des Prunais à Villiers-sur-Marne
Appartement
T3 / F3 / 3 pièces
64,21 m² habitables
1er étage
Nord-ouest
2 chambres
Terrasse 5 m²
À noter
- Villiers-sur-Marne
- Livraison 4ème trimestre 2027
- Résidence principale/secondaire
- Investissement locatif
- Votre suivi personnalisé Peterson.fr
- Garanti prix direct promoteur
Prestations et équipements
À propos du programme
.
Villiers-sur-Marne
En travaux
Livraison 4ème trimestre 2027

Accédez à notre page dédiée au programme "Le Domaine des Prunais" pour tout savoir sur la résidence, ses prestations et son quartier.
Autres biens disponibles
Le programme neuf Le Domaine des Prunais, situé dans la ville de Villiers-sur-Marne, est composé de 92 logements neufs de type appartement répartis en Studio, T2, T3, T4, T5, livrés du 4ème trimestre 2027 au 4ème trimestre 2027 et destinés aux différents projets : résidence principale, résidence secondaire et investissement locatif. Certains logements du programme bénéficient de dispositifs d'aide : zone anru etbrs (bail réel solidaire). Ce programme neuf est éligible aux dispositifs Droit Commun et BRS pour habiter ou investir à Villiers-sur-Marne. Le programme immobilier Le Domaine des Prunais possède le label énergétique RE 2020.
N° de lot
Surface
Commodités
Étage
Exposition
N° de lot
Surface
Commodités
Étage
Exposition
N° de lot
Surface
Commodités
Étage
Exposition
N° de lot
Surface
Commodités
Étage
Exposition
N° de lot
Surface
Commodités
Étage
Exposition
Investissez malin !
Ce programme peut bénéficier de nombreux avantages financiers adaptés à votre projet immobilier neuf :
Je recherche un bien pour...
Investir
Habiter
Il n'existe pas de dispositif d'aide pour Investir sur ce programme.



