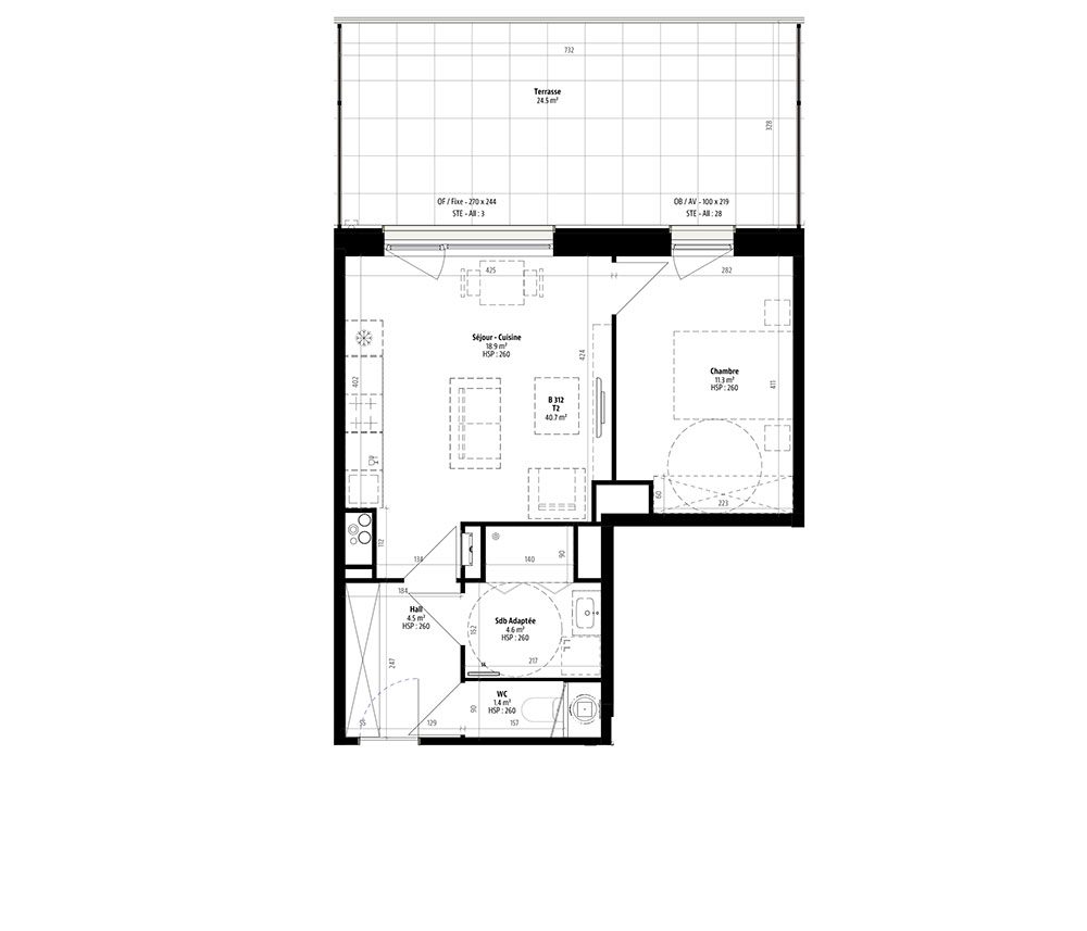
Appartement T2 n°B312 à Villeneuve-d'Ascq (59491)
Prix : nous consulter
Vertu'Ose à Villeneuve-d'Ascq
À noter
- Villeneuve-d'Ascq
- Livraison 4ème trimestre 2028
- Résidence principale/secondaire
- Investissement locatif
- Votre suivi personnalisé Peterson.fr
- Garanti prix direct promoteur
Prestations et équipements
À propos du programme
À seulement 6 km du centre de Lille, Villeneuve d’Ascq incarne l’équilibre parfait entre dynamisme urbain et nature préservée. La ville bénéficie d’un cadre verdoyant exceptionnel avec ses 110 hectares du parc du Héron, ses 40 hectares de parc urbain et ses 6 lacs. Elle se distingue par son attractivité économique (Decathlon, Bonduelle, Cofidis…), ses 23 parcs d’activités, ses deux campus universitaires accueillant 45 000 étudiants et ses deux centres commerciaux.
Les infrastructures de transport sont particulièrement performantes : métro (M1 et M2), tram, bus, gares TGV Lille-Europe et Lille-Flandres, ainsi qu’un accès rapide aux autoroutes. Côté loisirs, la ville propose une offre complète : médiathèque, cinémas, scène nationale La Rose des Vents, complexe sportif Palacium, stades dont le Stade Pierre Mauroy. Villeneuve d’Ascq est une adresse stratégique pour conjuguer qualité de vie et mobilité.
Villeneuve-d'Ascq
En travaux

Accédez à notre page dédiée au programme "Vertu'Ose" pour tout savoir sur la résidence, ses prestations et son quartier.
Autres biens disponibles
Un aperçu du nouveau programme immobilier « Vertu'Ose »
« Vertu'Ose » est un projet immobilier neuf situé à Villeneuve-d'Ascq. Dans ce programme, ce sont 22 appartements neufs qui sont proposés. 22 d'entre eux restent encore sur le marché. De type T2, T3 et T4, ils vous donneront l'occasion d'investir dans une résidence principale ou secondaire ou bien de vous lancer dans un investissement locatif. Les biens sont éligibles au dispositif de droit commun et seront mis à disposition à la fin de l'année 2028.



