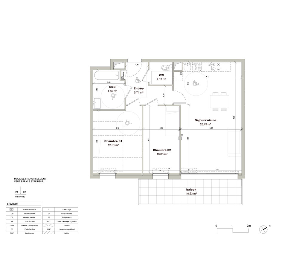
Appartement T3 n°B24 à Tourcoing (59200)
Prix : nous consulter
Quadreo à Tourcoing
À noter
- Tourcoing
- Livraison 4ème trimestre 2027
- Résidence principale/secondaire
- Investissement locatif
- Votre suivi personnalisé Peterson.fr
- Garanti prix direct promoteur
Prestations et équipements
À propos du programme
À deux pas de la Belgique, Tourcoing s’impose comme l’un des piliers de la Métropole Européenne de Lille (MEL). Cette ancienne cité textile, aujourd’hui tournée vers les industries créatives et les nouvelles technologies, séduit par son dynamisme économique et culturel. Le quartier du Quadrilatère des Piscines, en plein renouveau, incarne cette reconquête urbaine avec ses équipements modernes, ses espaces verts et sa proximité avec les pôles d’excellence. Tourcoing bénéficie d’une connectivité exceptionnelle : métro, tram, bus, TER, TGV et autoroutes facilitent les déplacements vers Lille, Paris ou Bruxelles.
Tourcoing
En travaux

Accédez à notre page dédiée au programme "Quadreo" pour tout savoir sur la résidence, ses prestations et son quartier.
Autres biens disponibles
Découvrez le programme neuf « Quadreo »
Le programme immobilier neuf « Quadreo » se situe à Tourcoing. Ce projet propose encore 3 de ses 3 appartements neufs qui ne sont pas encore réservés. De type T2, T3 et T4, ils s'adressent plutôt aux personnes intéressées par l'investissement locatif mais conviennent également pour investir dans une résidence principale ou secondaire. À la fin de l'année 2027, les logements seront terminés et vous pouvez aussi noter qu'ils sont éligibles au dispositif de droit commun.
Investissez malin !
Ce programme peut bénéficier de nombreux avantages financiers adaptés à votre projet immobilier neuf :
Je recherche un bien pour...




