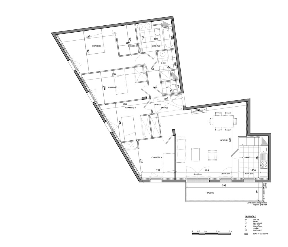
Appartement T5 n°B221 à La Courneuve (93120)
Prix : nous consulter
Programme neuf n°40123 à La Courneuve
À noter
- La Courneuve
- Livraison 2ème trimestre 2028
- Résidence principale/secondaire
- Investissement locatif
- Votre suivi personnalisé Peterson.fr
- Garanti prix direct promoteur
Prestations et équipements
À propos du programme
Située au sud de la ville dans le quartier des « Quatre Routes », dans un secteur pavillonnaire calme, votre nouvelle résidence signée Crédit Agricole Immobilier, offre également un accès immédiat à toutes les commodités. En moins de 5 min. à pied*, vous rejoignez les transports (métro ligne 7, tramway T1, bus), les services du quotidien, les commerces et les écoles. Prochainement (2027**), vous accéderez à la future ligne 15 Est du Grand Paris Express « Fort d’Aubervilliers » en 11 min. à pied*. ‘’Cour Nova’’ propose des appartements du studio au 5 pièces, avec cuisine et salle de bains et aménagées, tous prolongés par une belle surface extérieure***. La quasi totalité des logements dispose d’une ou de deux places de stationnement privatives pour faciliter votre quotidien. La résidence est certifiée NF Habitat HQE et dispose de l’attestation de respect de la réglementation environnementale RE2020, gage de performance énergétique et d’une plus grande qualité de logement. L’ensemble de l’opération est éligible à la TVA réduite à 5,5%****.
La Courneuve
En travaux

Accédez à notre page dédiée au programme "Programme neuf n°40123" pour tout savoir sur la résidence, ses prestations et son quartier.



