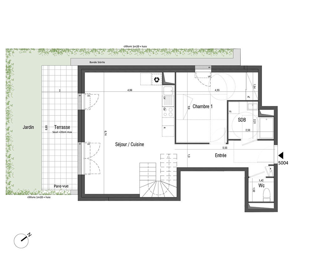
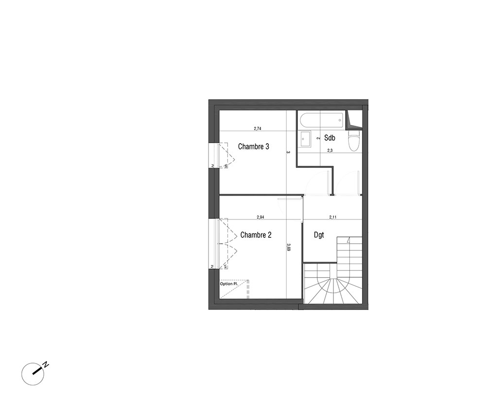
Appartement T4 n°5004 à Jouy-le-Moutier (95280)
Prix : nous consulter
P.A.R.C en Ville à Jouy-le-Moutier
À noter
- Jouy-le-Moutier
- Livraison 3ème trimestre 2028
- Résidence principale/secondaire
- Investissement locatif
- Votre suivi personnalisé Peterson.fr
- Garanti prix direct promoteur
Prestations et équipements
À propos du programme
Nouveau aux portes de Cergy-Pontoise : Une Parenthèse Arborée au coeur du Rêve Citadin.
Découvrez votre nouvelle résidence P.A.R.C en ville, idéalement située à Jouy-le-Moutier à deux pas de la Place du bien-être. Véritable lieu de vie des Jocassiens, cette place accueille des commerces et un joli marché. La proximité des établissements scolaires (de la crèche à l'école primaire), sportifs et culturels vous permettra d'y accéder facilement. À 3 minutes à pied, 2 lignes de bus vous donneront accès facilement aux gares de Neuville- Université et de Cergy Préfecture (RER A et Ligne L). Elles vous permettront de rejoindre La Défense et La Gare de Paris Saint-Lazare en 40 minutes.
Cette nouvelle résidence est composée de 70 appartements (studio au 5 pièces duplex) répartis harmonieusement autour d'un véritable coeur d'îlot paysager privatif qui vous permettra de profiter d'un cadre de vie de qualité et végétalisé en plein coeur de la ville. Tous les logements disposeront de généreuses surfaces extérieures (balcon, terrasse ou jardin privatif), ainsi que d'une place de parking en sous-sol minimum.
Jouy-le-Moutier
En travaux

Accédez à notre page dédiée au programme "P.A.R.C en Ville" pour tout savoir sur la résidence, ses prestations et son quartier.
Autres biens disponibles
« P.A.R.C en Ville » : le nouveau programme immobilier se dévoile
« P.A.R.C en Ville » est un projet immobilier dans le neuf à Jouy-le-Moutier. Dans ce programme, ce sont 47 appartements et duplex neufs qui sont proposés. 47 d'entre eux sont encore sur le marché. De type Studio, T2, T3, T4 et T5, ils peuvent s'adapter aux exigences propres à un investissement locatif mais aussi à celles d'une résidence principale ou secondaire. Éligibles au dispositif de droit commun, les biens seront terminés au troisième trimestre 2028.




