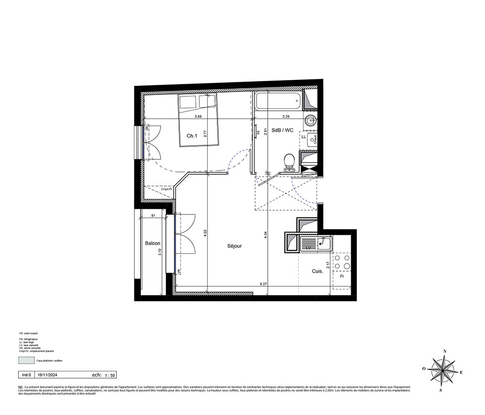
Appartement T2 n°B203 à Champs-sur-Marne (77420)
Prix : nous consulter
L'Ecrin des Champs à Champs-sur-Marne
À noter
- Champs-sur-Marne
- Livraison 4ème trimestre 2026
- Votre suivi personnalisé Peterson.fr
- Garanti prix direct promoteur
Prestations et équipements
À propos du programme
Avec une situation privilégiée et une excellente desserte en transports, Champs-sur-Marne vous fait profiter de la proximité de la gare du RER A et de grands axes routiers connectés aux zones économiques de la région.
À quelques minutes du centre commercial Carrefour City, pour allier loisirs et praticité quotidienne. La ville est aussi parfaitement desservie par les transports en commun : à proximité du RER A depuis la résidence, pour rejoindre Paris Métro Nation via Vincennes en seulement 40 minutes. À pied, vous accéderez aux groupes scolaires de la maternelle au lycée dans un rayon de moins d'un kilomètre, et à seulement 7 minutes du Parc du Château et de son domaine ou la Marne qui présente des sites magnifiques de la Seine-et-Marne
Champs-sur-Marne
En travaux

Accédez à notre page dédiée au programme "L'Ecrin des Champs" pour tout savoir sur la résidence, ses prestations et son quartier.
Autres biens disponibles
Découvrez le programme neuf « L'Ecrin des Champs »
Le projet immobilier neuf « L'Ecrin des Champs » s'intègre à Champs-sur-Marne. Ce nouveau projet compte, sur un total de 4 appartements neufs, 4 lots encore disponibles. Ce sont des logements de type T2 et T3 qui composent ce programme immobilier. Fin décembre 2026, les biens seront terminés et vous pouvez également noter qu'ils sont éligibles au dispositif de droit commun.



