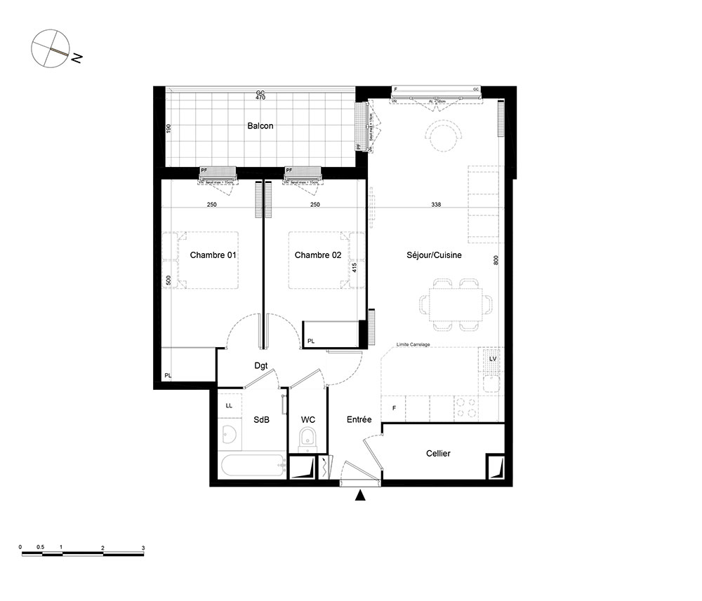
Appartement T3 n°A208 à Neuilly-Plaisance (93360)
Prix : nous consulter
Villa Marnéa à Neuilly-Plaisance
À noter
- Neuilly-Plaisance
- Livraison 1er trimestre 2028
- Résidence principale/secondaire
- Investissement locatif
- Votre suivi personnalisé Peterson.fr
- Garanti prix direct promoteur
Prestations et équipements
À propos du programme
Architecture néoclassique élégante, harmonieuse et intemporelle. Porche majestueux ouvrant sur un jardin intérieur paysager. Résidence entièrement clôturée, sécurisée (visiophone, badge Vigik®). Stationnement souterrain sur deux niveaux. Zone végétalisée en coeur d'îlot.
Neuilly-Plaisance
En travaux

Accédez à notre page dédiée au programme "Villa Marnéa" pour tout savoir sur la résidence, ses prestations et son quartier.
Autres biens disponibles
« Villa Marnéa » : survol de ce programme immobilier dans le neuf
Le projet « Villa Marnéa » est un programme neuf installé à Neuilly-Plaisance. Ce projet est composé de 29 appartements et duplex neufs dont 29 qui sont toujours disponibles. De type T2, T3, T4 et T5, si vous cherchez une résidence principale ou secondaire ou encore un investissement locatif, ils se révéleront appropriés à votre projet. Les logements sont éligibles au dispositif de droit commun et seront mis à disposition au premier trimestre 2028.
Investissez malin !
Ce programme peut bénéficier de nombreux avantages financiers adaptés à votre projet immobilier neuf :
Je recherche un bien pour...



