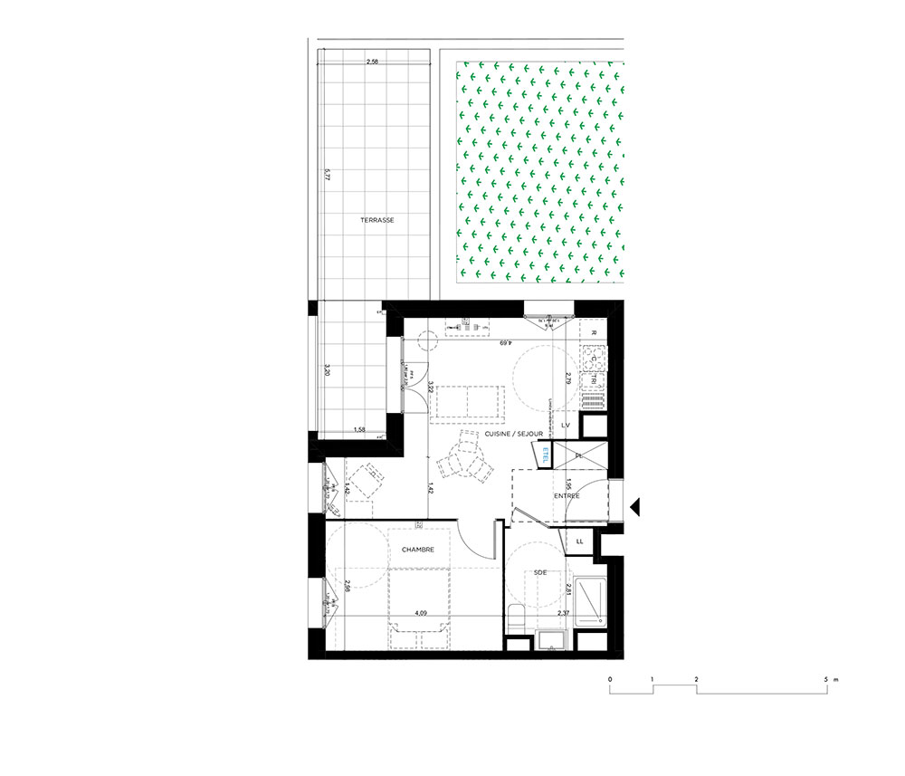
Appartement T2 n°A34 à Louvres (95380)
Prix : nous consulter
Jardin en Scène à Louvres
À noter
- Louvres
- Livraison 4ème trimestre 2027
- Votre suivi personnalisé Peterson.fr
- Garanti prix direct promoteur
Prestations et équipements
À propos du programme
La résidence « Jardin en Scène » bénéficie d'un emplacement de choix dans le quartier de la gare, nouveau coeur de ville au sein de l'éco-quartier de Louvres et Puiseux-en-France. Dans ce vaste site écologique, sont notamment prônés les transports doux, les espaces végétalisés et la maîtrise des consommations d'énergie. Située dans le Val d'Oise, à 25 km de Paris et à proximité du pôle économique du Grand Roissy, Louvres se distingue par son cadre de vie agréable, offrant un équilibre entre dynamisme et douceur de vivre.
La commune s'est développée au fil des années, sans perdre le charme authentique de son centre-ville historique. Sa localisation stratégique est confortée par la desserte du RER D et l'accès rapide à la D317, la N104 et l'A1.
Louvres
En travaux

Accédez à notre page dédiée au programme "Jardin en Scène" pour tout savoir sur la résidence, ses prestations et son quartier.
Autres biens disponibles
« Jardin en Scène » : présentation du nouveau programme immobilier
Le projet immobilier neuf « Jardin en Scène » se situe à Louvres. 42 appartements neufs sont inclus dans ce programme. À l'heure actuelle, 42 d'entre eux restent encore disponibles. Ce projet met à votre portée des biens allant du Studio au T3. Fin décembre 2027, les logements seront mis à disposition des habitants. Par ailleurs, sachez qu'ils sont éligibles au dispositif de droit commun.



