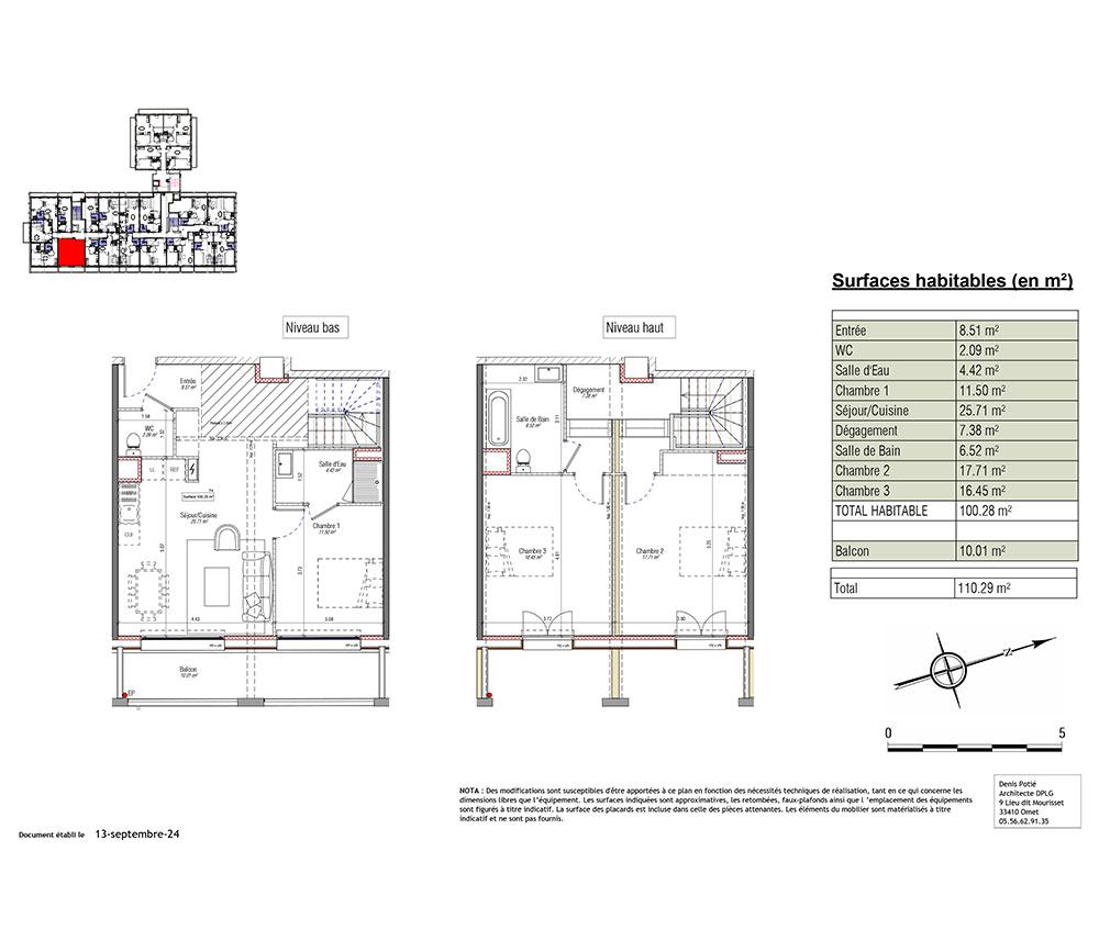
Appartement T4 n°A24 à La Courneuve (93120)
Prix : nous consulter
L'Edgar à La Courneuve
À noter
- La Courneuve
- Livraison 4ème trimestre 2026
- Résidence principale/secondaire
- Investissement locatif
- Votre suivi personnalisé Peterson.fr
- Garanti prix direct promoteur
Prestations et équipements
À propos du programme
Signature des contrats de réservation: préremplir le contrat de réservation et le transmettre à Maud Garnier (mgarnier@wemoneuf.fr) pour envoi en signature électronique via docusign Wemo
La Courneuve
En travaux

Accédez à notre page dédiée au programme "L'Edgar" pour tout savoir sur la résidence, ses prestations et son quartier.
Autres biens disponibles
Nouveauté sur le marché de l'immobilier : en apprendre plus sur le projet « L'Edgar »
Le programme immobilier « L'Edgar », qui propose des biens neufs, est implanté à La Courneuve. Ce programme comprend 10 appartements neufs, dont 10 sont encore disponibles à ce jour. De type T2, T3 et T4, ils vous donneront l'occasion d'investir dans une résidence principale ou secondaire ou bien de vous lancer dans un investissement locatif. Éligibles au dispositif de droit commun, les logements seront livrés fin décembre 2026.
Investissez malin !
Ce programme peut bénéficier de nombreux avantages financiers adaptés à votre projet immobilier neuf :
Je recherche un bien pour...

