Appartement T1 n°B62 à Chevilly-Larue (94550)
Prix : nous consulter
Les Illuminations à Chevilly-Larue
Appartement
T1 / F1 / 1 pièce
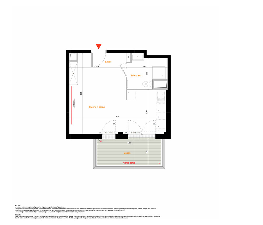
32,31 m² habitables
6ème étage
Sud
0 chambre
Balcon 7 m²
À noter
- Chevilly-Larue
- Livraison 2ème trimestre 2028
- Votre suivi personnalisé Peterson.fr
- Garanti prix direct promoteur
Prestations et équipements
À propos du programme
.
Chevilly-Larue
En travaux
Livraison 2ème trimestre 2028

Accédez à notre page dédiée au programme "Les Illuminations" pour tout savoir sur la résidence, ses prestations et son quartier.
Autres biens disponibles
Tout ce qu'il faut savoir sur le nouveau programme immobilier « Les Illuminations »
Le programme de logements neufs « Les Illuminations » est un projet situé à Chevilly-Larue. Ce projet immobilier propose 37 appartements, tous neufs, et 37 d'entre eux sont toujours sur le marché. Ce sont des biens allant du Studio au T3 qui sont construits dans ce programme. Il est important de noter que les logements sont éligibles au dispositif de droit commun. Pour investir les lieux, cela sera possible au 2e trimestre 2028.
N° de lot
Surface
Commodités
Étage
Exposition
N° de lot
Surface
Commodités
Étage
Exposition
N° de lot
Surface
Commodités
Étage
Exposition




