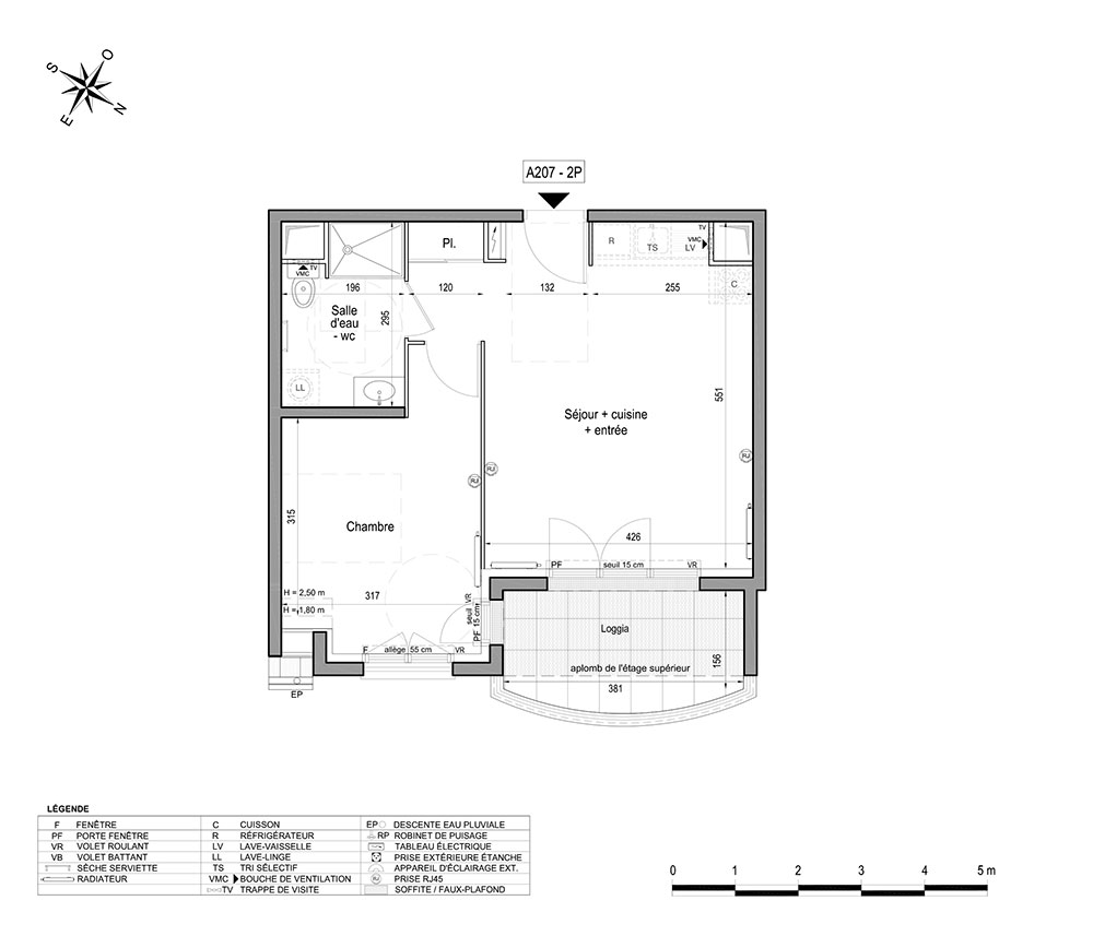
Appartement T2 n°A207 à Montfermeil (93370)
Prix : nous consulter
Résidence Albert Mourlan à Montfermeil
À noter
- Montfermeil
- Livraison 1er trimestre 2027
- Résidence principale/secondaire
- Investissement locatif
- Votre suivi personnalisé Peterson.fr
- Garanti prix direct promoteur
À propos du programme
Au coeur de Montfermeil, nichée dans la rue du Commandant Caroline Aigle, découvrez une nouvelle réalisation MDH PROMOTION, la Résidence Albert Mourlan, une fusion entre tradition et modernité.
Les appartements du studio au 4 pièces sont tous rythmés par des balcons ou loggias sur rue ou donnant sur le coeur verdoyant de la résidence.
En rez-de-chaussée, les jardins privatifs procurent cet esprit paisible et reposant.
La lumière est privilégiée dans ces belles surfaces soigneusement aménagées et orientées bénéficiant parfois d'une disposition traversante.
Montfermeil
En travaux

Accédez à notre page dédiée au programme "Résidence Albert Mourlan" pour tout savoir sur la résidence, ses prestations et son quartier.
Autres biens disponibles
« Résidence Albert Mourlan », le nouveau projet immobilier
Le programme « Résidence Albert Mourlan » est un projet neuf installé à Montfermeil. Ce nouveau programme comporte, sur un total de 17 appartements neufs, 17 biens encore libres. Ils sont de type Studio, T2, T3 et T4 et adaptés à la fois à une résidence principale ou secondaire et à un investissement locatif. Les logements sont éligibles au dispositif de droit commun et seront terminés au premier trimestre 2027.
Investissez malin !
Ce programme peut bénéficier de nombreux avantages financiers adaptés à votre projet immobilier neuf :
Je recherche un bien pour...


