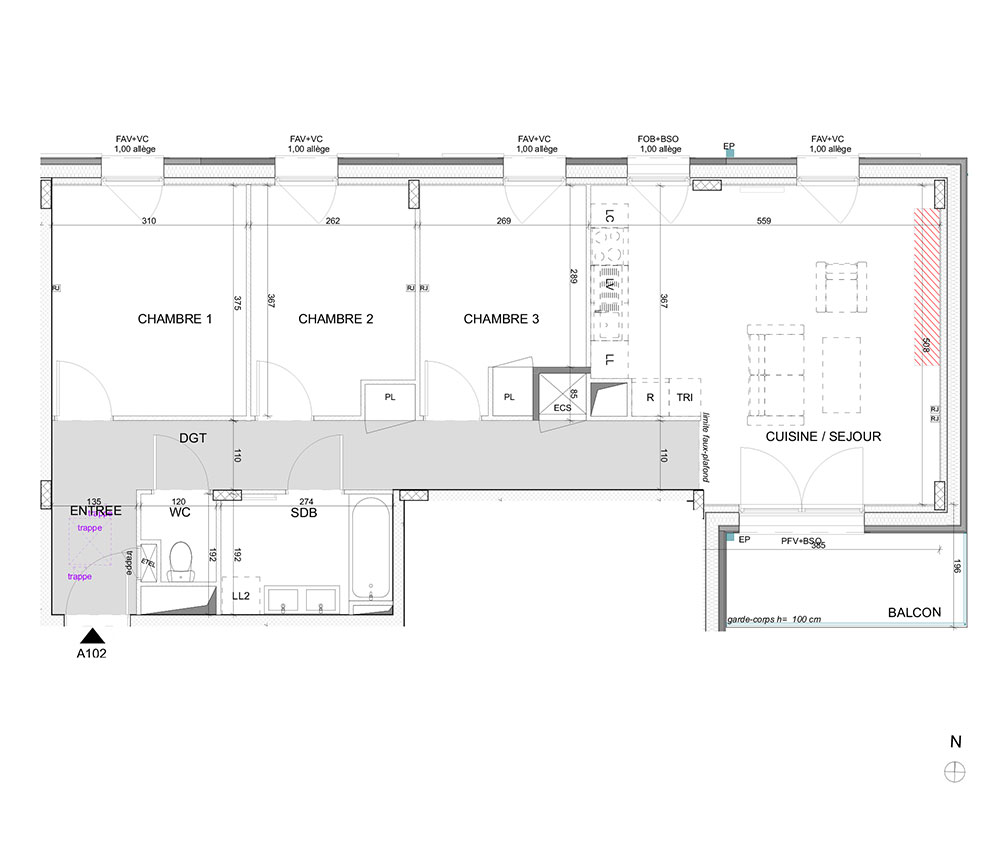
Appartement T4 n°A102 à Coupvray (77700)
Prix : nous consulter
Les Demeures du Val à Coupvray
À noter
- Coupvray
- Livraison 4ème trimestre 2025
- Votre suivi personnalisé Peterson.fr
- Garanti prix direct promoteur
Prestations et équipements
À propos du programme
Laissez-vous séduire par les demeures du val, une réalisation MDH PROMOTION, composée d'appartements et de maisons du studio au 5 pièces largement ouverts sur l'extérieur, au sud et prolongées de balcons, terrasses, loggias ou jardins privatifs.
Tous les appartements et maisons sont conçus pour réagir naturellement et passivement aux variations quotidiennes de leur environnement et de l'usage des résidents.
Avec des performances de conception bioclimatique éprouvées, les demeures du val sont labellisées NF HABITAT HQE, Passiv Haus*.
Les circulations douces, piétonnes et cyclistes, largement accompagnées et rythmées par des espaces verts paysagers confèrent aux demeures du val le privilège d'un écoquartier intégré dans son environnement : la promesse d'un cadre de vie idéal à proximité immédiate des écoles et des commerces. les demeures du val : la parfaite alliance entre dynamisme et tranquillité.
Coupvray
En travaux

Accédez à notre page dédiée au programme "Les Demeures du Val" pour tout savoir sur la résidence, ses prestations et son quartier.
Autres biens disponibles
Le programme « Les Demeures du Val » s'intègre dans le marché immobilier local
Coupvray bénéficie du projet immobilier neuf « Les Demeures du Val ». Ce projet propose encore 12 de ses 12 appartements neufs qui ne sont pas encore réservés. Ce sont des logements de type T2, T3 et T4 qui vous sont proposés dans ce programme. Les biens sont éligibles au dispositif de droit commun. La livraison est prévue fin décembre 2025.



