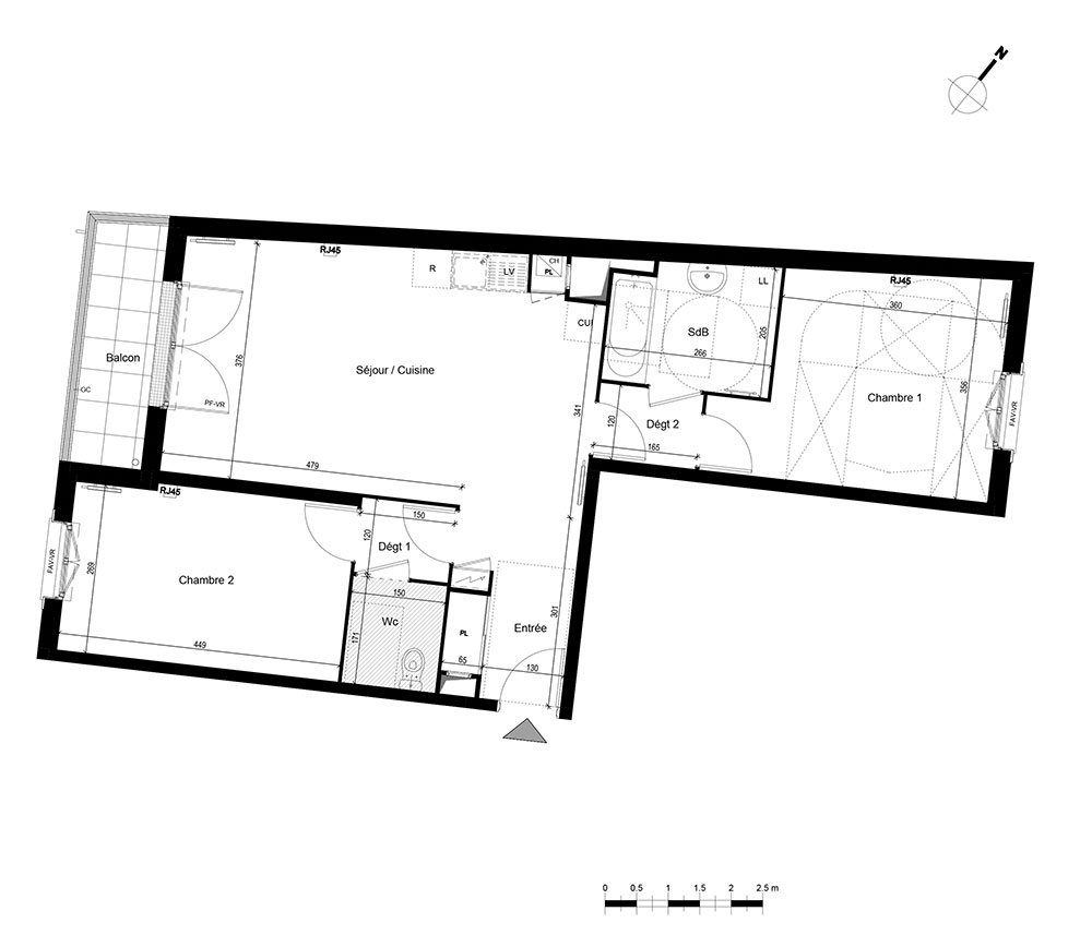
Appartement T3 n°D14 à Limay (78520)
Prix : nous consulter
Jardin Célestine à Limay
À noter
- Limay
- Livraison 4ème trimestre 2027
- Résidence principale/secondaire
- Investissement locatif
- Votre suivi personnalisé Peterson.fr
- Garanti prix direct promoteur
Prestations et équipements
À propos du programme
1 place de parking pour les studios et 2 pièces, 2 places en enfilade pour 3 et 4 pièces
Limay
En travaux

Accédez à notre page dédiée au programme "Jardin Célestine" pour tout savoir sur la résidence, ses prestations et son quartier.
Autres biens disponibles
Nouveauté sur le marché de l'immobilier : en savoir plus sur le projet « Jardin Célestine »
« Jardin Célestine » vient augmenter le parc immobilier neuf de Limay. Au sein de ce programme, on peut retrouver 26 appartements neufs, dont 26 sont encore sur le marché. Ils sont de type Studio, T2, T3 et T4 et adaptés en même temps à une résidence principale ou secondaire et à un investissement locatif. Les biens seront livrés fin décembre 2027, à la fin des travaux, et sont éligibles au dispositif de droit commun.
Investissez malin !
Ce programme peut bénéficier de nombreux avantages financiers adaptés à votre projet immobilier neuf :
Je recherche un bien pour...

