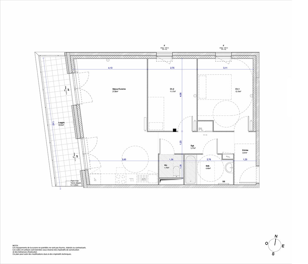
Appartement T3 n°A124 à Arpajon (91290)
Prix : nous consulter
Essen'tiel à Arpajon
À noter
- Arpajon
- Livraison 2ème trimestre 2027
- Votre suivi personnalisé Peterson.fr
- Garanti prix direct promoteur
Prestations et équipements
À propos du programme
Découvrez la résidence Essen'tiel, composée de 25 appartements au coeur de l'éco-quartier Les Belles Vues. Les appartements du 2 au 5 pièces sont prolongés pour la plupart par des extérieurs (loggias ou terrasses). La résidence, conçue selon les normes environnementales RE 2020, met l'accent sur l'efficacité énergétique. Vous profiterez d'espaces verts et de toitures végétalisées, le tout dans une architecture soignée qui privilégie le confort et la qualité de vie au quotidien.
Arpajon
En travaux

Accédez à notre page dédiée au programme "Essen'tiel" pour tout savoir sur la résidence, ses prestations et son quartier.
Autres biens disponibles
« Essen'tiel » : présentation du nouveau projet immobilier
Arpajon est le berceau du programme immobilier neuf « Essen'tiel ». Ce projet se compose de 21 appartements neufs, dont 21 sont encore disponibles pour le moment. Ce programme met à votre portée des logements de type Studio, T2, T3, T4 et T5. Les biens seront livrés au deuxième trimestre 2027, à l'issue des travaux, et sont éligibles au dispositif de droit commun.

