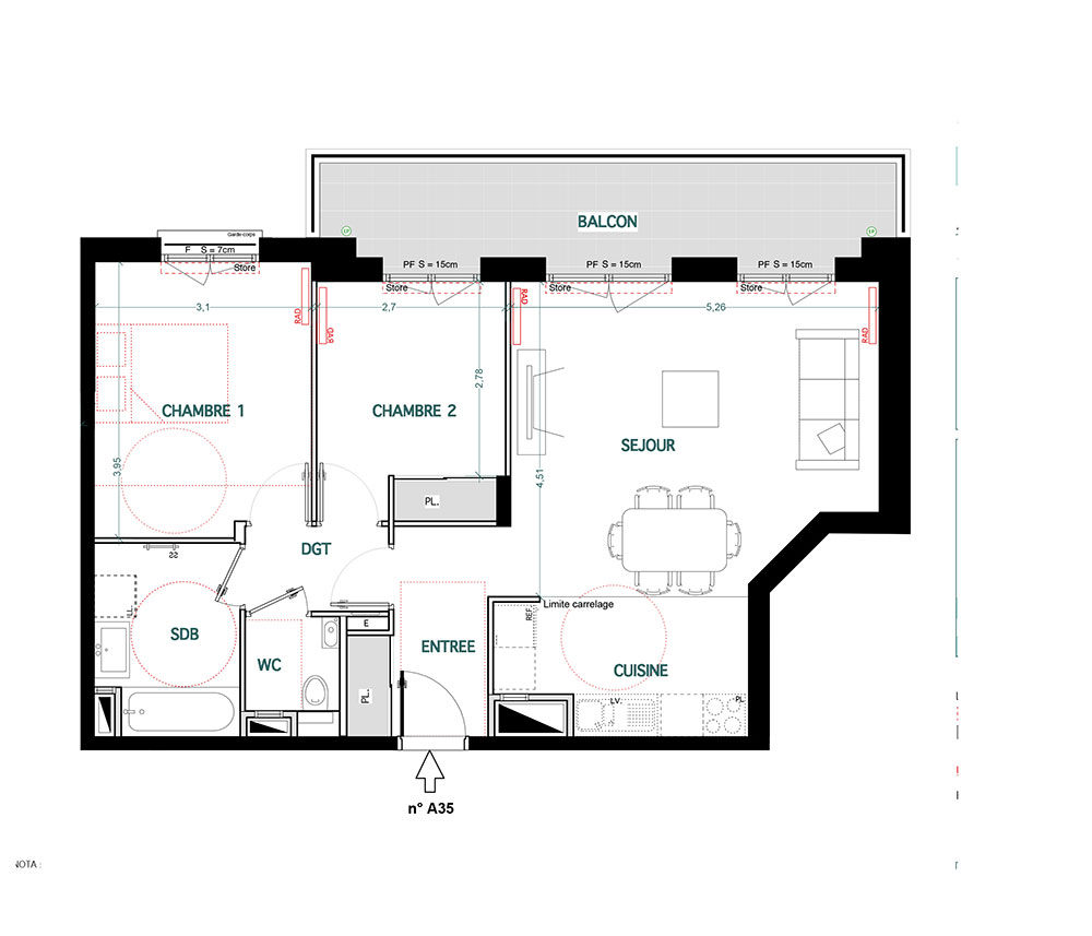
Appartement T3 n°A35 à Vincennes (94300)
Prix : nous consulter
45 Defrance à Vincennes
À noter
- Vincennes
- Livraison 4ème trimestre 2027
- Votre suivi personnalisé Peterson.fr
- Garanti prix direct promoteur
Prestations et équipements
À propos du programme
A l'origine, un imposant bâtiment de 30 000 m² occupait la vaste emprise foncière s'étendant de la rue Angélique Defrance au sud, à la rue de la Jarry au nord. Dans cette utopie des années 30 ont cohabité, des décennies durant, activité et logements, en plein coeur de Vincennes. Aujourd'hui, une seconde vie est donnée à cette ancienne friche : un lycée et un gymnase ont été érigés et notre projet résidentiel vient parachever cette mutation urbaine.
Vincennes
En travaux

Accédez à notre page dédiée au programme "45 Defrance" pour tout savoir sur la résidence, ses prestations et son quartier.
Autres biens disponibles
Tout savoir sur le projet neuf « 45 Defrance »
Le programme immobilier neuf « 45 Defrance » se situe à Vincennes. Au sein de ce programme, on retrouve 7 appartements neufs, dont 7 sont encore sur le marché. Ce projet vous offre des biens de type T2, T3 et T4. Notez que les logements sont éligibles au dispositif de droit commun et seront livrés à la fin de l'année 2027.


