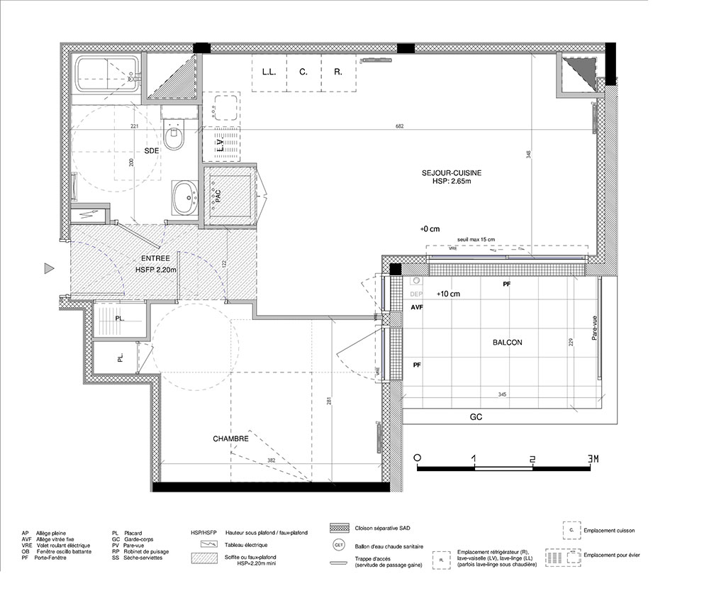
Appartement T2 n°304 à Bouguenais (44340)
Prix : nous consulter
Carré Beauvoir à Bouguenais
À noter
- Bouguenais
- Livraison 3ème trimestre 2027
- Résidence principale/secondaire
- Investissement locatif
- Votre suivi personnalisé Peterson.fr
- Garanti prix direct promoteur
Prestations et équipements
À propos du programme
Devenez propriétaire à Bouguenais – Vivez le charme du cœur de bourg !
Bouguenais
En travaux

Accédez à notre page dédiée au programme "Carré Beauvoir" pour tout savoir sur la résidence, ses prestations et son quartier.
Autres biens disponibles
Introduction au programme neuf « Carré Beauvoir »
« Carré Beauvoir » est un programme immobilier neuf. Il se situe à Bouguenais. Ce projet contient 6 appartements neufs qui s'ajoutent au parc immobilier local. 6 d'entre eux restent encore sur le marché. Allant du T2 au T4, ils correspondront autant à un investissement locatif qu'à une résidence principale ou secondaire. Il est important de noter que les logements sont éligibles aux dispositifs de droit commun et LMNP (loueur en meublé non professionnel) hors bail commercial. Pour investir les lieux, cela sera possible au troisième trimestre 2027.

