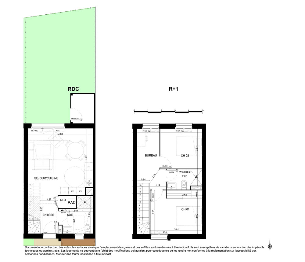
Maison T3 n°1009 à Le Barp (33114)
Prix : nous consulter
Vision'eyre à Le Barp
À noter
- Le Barp
- Livraison 2ème trimestre 2028
- Résidence principale/secondaire
- Investissement locatif
- Votre suivi personnalisé Peterson.fr
- Garanti prix direct promoteur
Prestations et équipements
À propos du programme
Devenez propriétaire au Barp, une commune dynamique et verdoyante située entre Bordeaux et le Bassin d'Arcachon, au coeur de la Gironde. Dans un lotissement calme et résidentiel, découvrez une nouvelle résidence proposant des appartements neufs de 2 et 3 pièces, ainsi que des maisons neuves de 3 ou 4 pièces, idéales pour les familles, les jeunes actifs ou les investisseurs. Chaque logement a été pensé pour offrir un confort de vie optimal, avec des espaces lumineux, des prestations de qualité, et un extérieur privatif (balcon, terrasse ou jardin). Le tout dans un environnement naturel, à proximité des commerces, écoles, services de santé et axes routiers (A63 à quelques minutes). Pourquoi acheter un bien immobilier neuf au Barp ? Un emplacement stratégique, à 30 minutes de Bordeaux et d'Arcachon, un cadre de vie recherché et des avantages fiscaux (éligible PTZ, frais de notaire réduits, normes énergétiques optimales)
Le Barp
En travaux

Accédez à notre page dédiée au programme "Vision'eyre" pour tout savoir sur la résidence, ses prestations et son quartier.
Autres biens disponibles
Description du projet neuf « Vision'eyre »
« Vision'eyre » est un programme immobilier neuf qui est installé au Barp. 28 sont encore disponibles sur les 34 maisons et appartements neufs qui sont proposés dans ce programme. De type T2, T3 et T4, ils correspondront autant à un investissement locatif qu'à une résidence principale ou secondaire. Notez que les biens seront livrés fin décembre 2027 et qu'ils sont éligibles au dispositif de droit commun.



