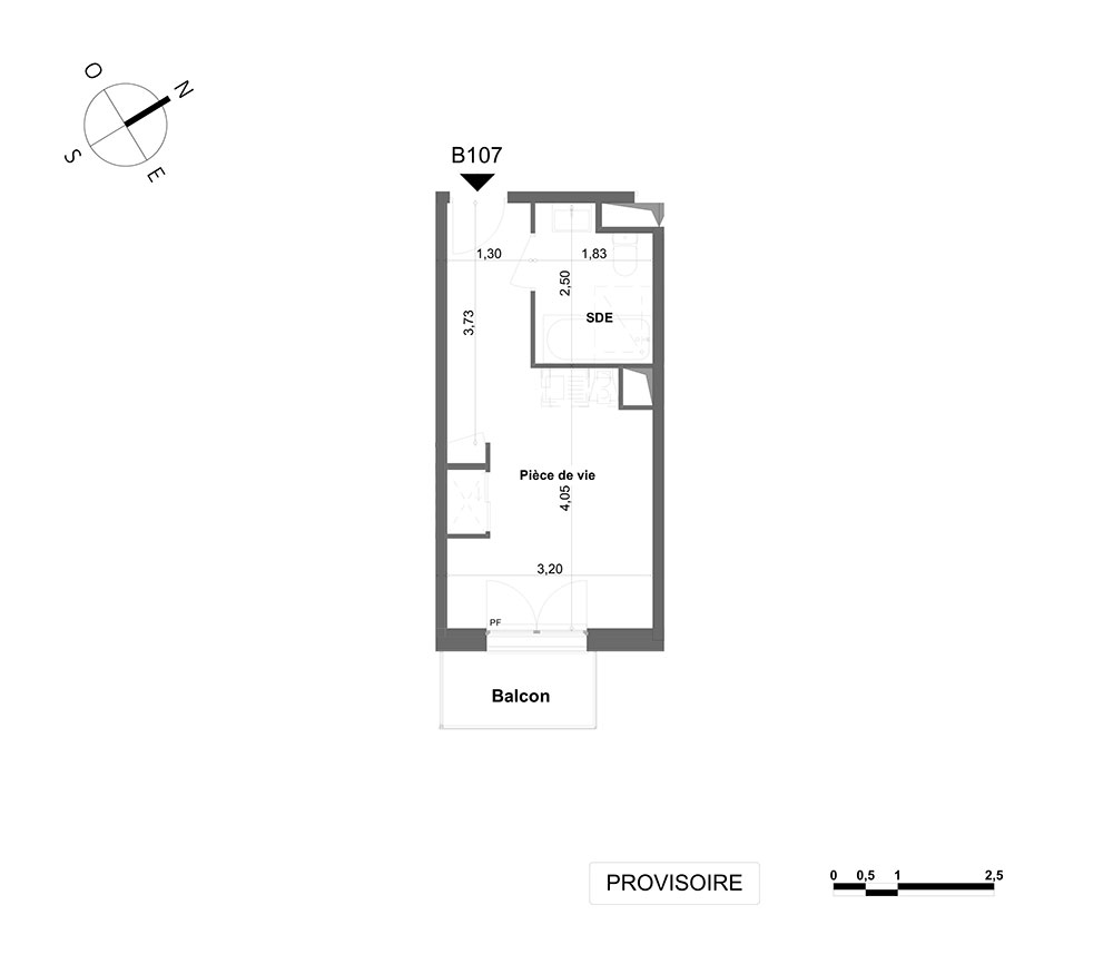
Appartement T1 n°B107 à Anzin (59410)
Prix : nous consulter
Novea à Anzin
À noter
- Anzin
- Livraison 3ème trimestre 2027
- Résidence principale/secondaire
- Investissement locatif
- Votre suivi personnalisé Peterson.fr
- Garanti prix direct promoteur
À propos du programme
La ville abrite notamment Rubika, l'une des meilleures facultés de Design produit de France, située à seulement 5 min en vélo, ou à 16 min en tramway dont l’arrêt se situe à seulement 5 min. à pied. Toutes proches, les universités de Polytechnique des Hauts-de-France, l’IUT ainsi que le centre Hospitalier de Valenciennes viennent conforter le besoin de nombreux jeunes actifs et d'étudiants à la recherche de logements.
La proximité avec Valenciennes, accessible en seulement 6 min en voiture, ainsi que la gare TGV reliant Lille Flandres, Douai et Paris Nord, constitue un atout majeur. La commune est également très bien desservie par les nombreux bus et tramway, qui parcourent l'ensemble de la ville et offrent un accès facile à notre résidence.
Anzin
En travaux

Accédez à notre page dédiée au programme "Novea" pour tout savoir sur la résidence, ses prestations et son quartier.
