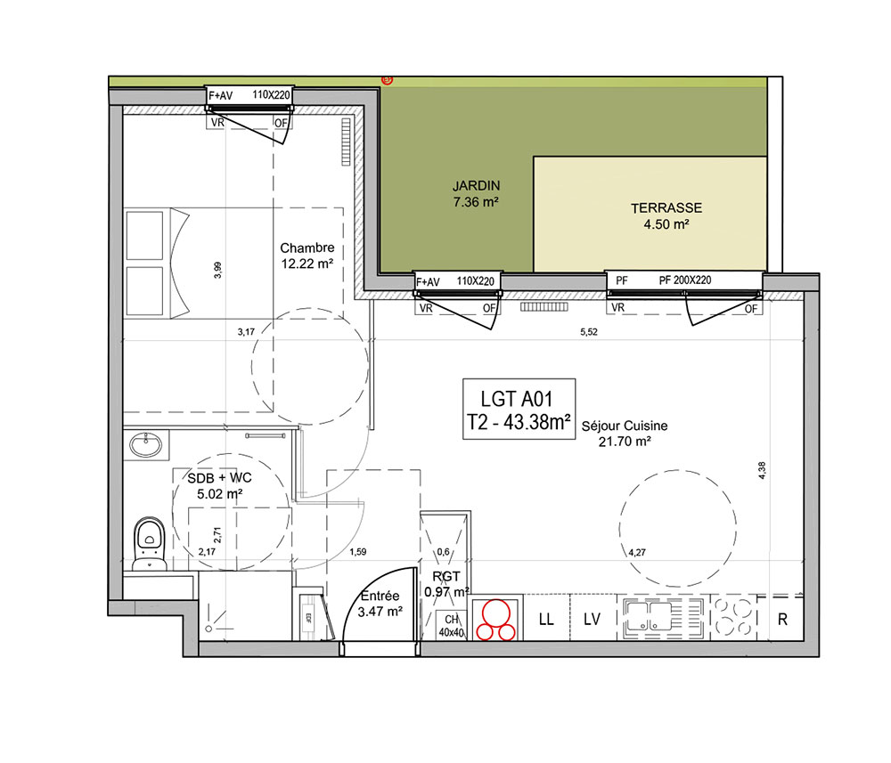
Appartement T2 n°A001 à Haubourdin (59320)
Prix : nous consulter
Résidence Bellevue à Haubourdin
À noter
- Haubourdin
- Investissement locatif
- Votre suivi personnalisé Peterson.fr
- Garanti prix direct promoteur
Ce programme propose des biens éligibles aux dispositifs de défiscalisation suivant :
À propos du programme
Résidence livrée en octobre 2025.
Située à Haubourdin, une commune attractive de la métropole lilloise, à 7 min de Lille et proche de tous les services du quotidien.
Un cadre de vie prisé : jardin public juste en face, 38 commerces, 16 établissements scolaires et de nombreux équipements sportifs dans un rayon proche.
Excellente desserte : 3 lignes de bus à 60 m, gare TER à 8 min à pied, accès rapide à l'A25 et aux pistes cyclables.
Une architecture élégante, inspirée des façades flamandes, s'intégrant parfaitement au quartier.
Résidence intimiste de 35 logements, avec des espaces extérieurs généreux : balcons, terrasses ou jardins privatifs.
Prestations soignées : sol stratifié, carrelage dans les pièces humides, chauffage individuel gaz, parkings en sous-sol.
Haubourdin
Avantages fiscaux

Accédez à notre page dédiée au programme "Résidence Bellevue" pour tout savoir sur la résidence, ses prestations et son quartier.


