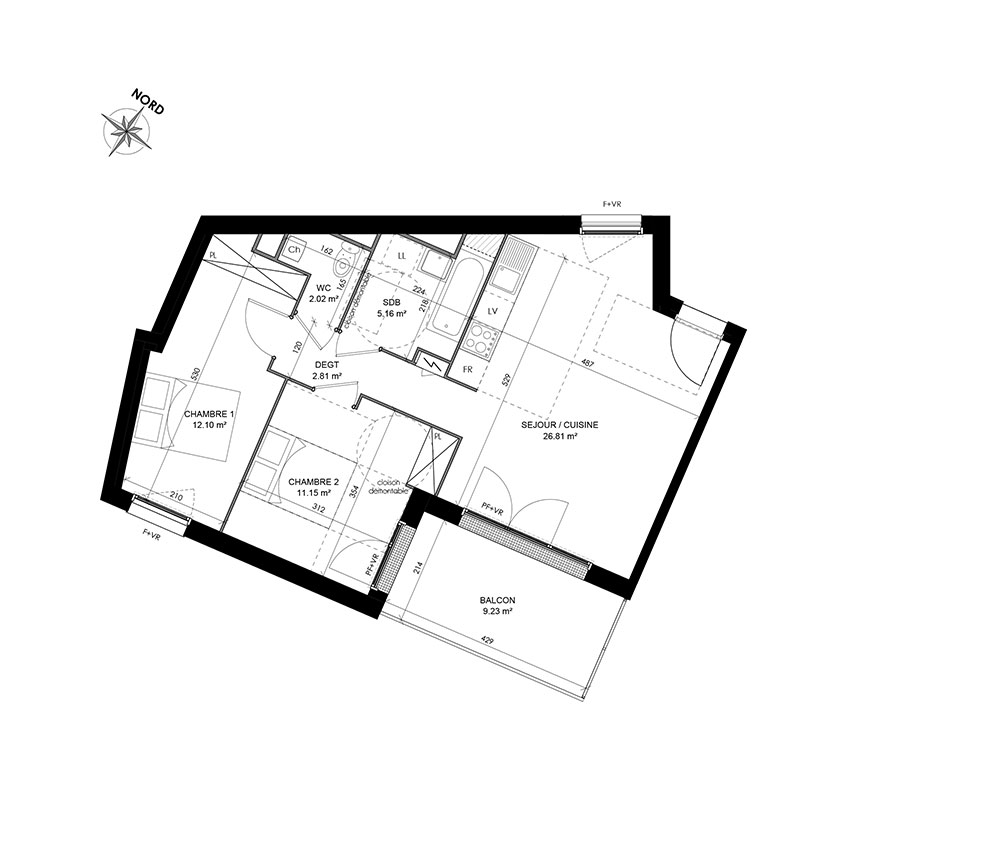
Appartement T3 n°A105 à Nord (secteur 3) Toulouse (31300)
Prix : nous consulter
Ô Toulouse à Nord (secteur 3) - Toulouse
À noter
- Toulouse
- Livraison 4ème trimestre 2027
- Résidence principale/secondaire
- Investissement locatif
- Votre suivi personnalisé Peterson.fr
- Garanti prix direct promoteur
Prestations et équipements
À propos du programme
Située au Nord de Toulouse, dans le quartier de Barrière de Paris, découvrez en avant-première notre nouvelle résidence moderne, composée de seulement 21 appartements allant du T2 au T4, avec certains logements proposés dans le cadre du dispositif de Prix Maitrisés.
Dotée d’une écriture architecturale sobre et contemporaine faisant la part belle aux espaces extérieurs privatifs, l’ensemble des façades offrent un aspect sculptural avec un traitement végétal soigné grâce à son habillage de plantes grimpantes et d’arbustes. Depuis 50 ans, European Homes réinvente la qualité de vie et propose à Toulouse des appartements traversant tous dotés d’un espace extérieur généreux. Chaque logement bénéficie d’une place de stationnement privative et sécurisée en sous-sol.
Nord (secteur 3)
En travaux

Accédez à notre page dédiée au programme "Ô Toulouse" pour tout savoir sur la résidence, ses prestations et son quartier.
Autres biens disponibles
« Ô Toulouse » : survol de ce projet immobilier dans le neuf
Le programme immobilier neuf « Ô Toulouse » s'installe à Toulouse. Au sein de ce programme, on retrouve 21 appartements neufs, dont 21 sont encore sur le marché. Allant du T2 au T4, ils vous donneront l'occasion d'investir dans une résidence principale ou secondaire ou bien de vous lancer dans un investissement locatif. Remarquez que les logements sont éligibles au dispositif de droit commun et seront prêts à être livrés à la fin de l'année 2027.
