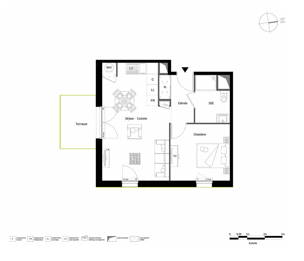
Appartement T2 n°1003 à Laval (53000)
Prix : nous consulter
Canopée à Laval
À noter
- Laval
- Livraison 4ème trimestre 2028
- Résidence principale/secondaire
- Investissement locatif
- Votre suivi personnalisé Peterson.fr
- Garanti prix direct promoteur
Prestations et équipements
À propos du programme
Découvrez Canopée, une résidence de standing au design raffiné à Laval !La résidence Canopée incarne un art de vivre contemporain, en harmonie avec le cadre verdoyant et résidentiel de Laval. Située dans un quartier calme, à proximité immédiate des commerces, des écoles et des transports, cette réalisation à l'architecture élégante et soignée offre un quotidien serein, entre nature et commodités. Les appartements, du T1bis au T3, sont conçus pour offrir des intérieurs lumineux et bien agencés, adaptés à tous les projets de vie : premier achat, résidence principale ou pied-à-terre fonctionnel. Ici, tout est accessible à pied, à vélo ou en bus... pour un mode de vie pratique et durable.
Laval
En travaux

Accédez à notre page dédiée au programme "Canopée" pour tout savoir sur la résidence, ses prestations et son quartier.
Autres biens disponibles
Découvrez le projet neuf « Canopée »
Le projet immobilier neuf « Canopée » se situe à Laval. Ce programme compte 20 appartements neufs. En ce moment, 20 d'entre eux sont toujours disponibles. Allant du T1 au T3, ils peuvent servir de résidence principale ou secondaire et permettent aussi l'investissement locatif. Au 2e trimestre 2028, les biens seront mis à disposition et sachez qu'ils sont éligibles au dispositif de droit commun.


