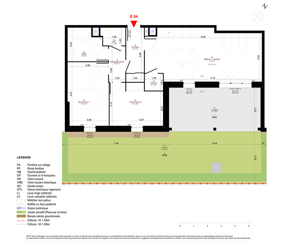
Appartement T3 n°BRSE04 à Mouvaux (59420)
Prix : nous consulter
Le Clos Lorthiois à Mouvaux
À noter
- Mouvaux
- Livraison 4ème trimestre 2027
- Votre suivi personnalisé Peterson.fr
- Garanti prix direct promoteur
Prestations et équipements
À propos du programme
À 15 minutes à pied du centre-ville et du tramway, dans un quartier résidentiel en plein renouveau. Commerces, écoles, équipements sportifs, et parcs accessibles rapidement. La résidence, à taille humaine propose des appartements allant du 2 au 5 pièces, avec balcons, terrasses ou jardins privatifs selon les lots. Architecture soignée, espaces verts aménagés, et un miroir d'eau central apportant fraîcheur et calme. 142 places de stationnement en sous-sol, dont 42 boxs fermés. Stationnements visiteurs en extérieur.
Mouvaux
En travaux
Avantages fiscaux

Accédez à notre page dédiée au programme "Le Clos Lorthiois" pour tout savoir sur la résidence, ses prestations et son quartier.
Autres biens disponibles
Venez découvrir « Le Clos Lorthiois »
« Le Clos Lorthiois » est un programme immobilier neuf qui est installé à Mouvaux. Ce projet immobilier présente 46 appartements, tous neufs, et 46 d'entre eux sont encore disponibles. Allant du T2 au T5, ils répondront aux exigences des intéressés par l'investissement locatif ainsi qu'à celles des personnes à la recherche d'une résidence principale ou secondaire. Éligibles aux dispositifs de droit commun, BRS et de nue-propriété (Démembrement), vous pouvez dès maintenant noter que les logements seront accessibles à la fin de l'année 2027.
Investissez malin !
Ce programme peut bénéficier de nombreux avantages financiers adaptés à votre projet immobilier neuf :
Je recherche un bien pour...



