Appartement T4 n°H01 à Ouest (secteur 6) Toulouse (31300)
Prix : nous consulter
Coeur Lardenne - Prix Maîtrisés à Ouest (secteur 6) - Toulouse
À noter
- Toulouse
- Livraison 2ème trimestre 2026
- Résidence principale/secondaire
- Investissement locatif
- Votre suivi personnalisé Peterson.fr
- Garanti prix direct promoteur
Prestations et équipements
À propos du programme
Quartier Lardenne, vous y croyez ? Maintenant, vous habitez là, dans le giron de l'Université, de l'Hippodrome, du Zénith, les plaisirs de Toulouse tout à côté. Vous adorez cette adresse pour ses « toulousaines » bordées d'arbres et son esprit village. Coeur Lardenne a d'ailleurs tout compris de l'âme du quartier en proposant 38 superbes appartements, tous uniques, entourés d'espaces végétalisés, de cheminements bucoliques et de jardins privatifs. Le plus de Coeur Lardenne ? Aucune voiture : les circulations et les parkings en sous-sol desservis par des ascenseurs. Votre garantie zéro nuisance !
Ouest (secteur 6)
En travaux

Accédez à notre page dédiée au programme "Coeur Lardenne - Prix Maîtrisés" pour tout savoir sur la résidence, ses prestations et son quartier.
Autres biens disponibles
Découvrez le programme neuf « Cœur Lardenne - Prix Maîtrisés »
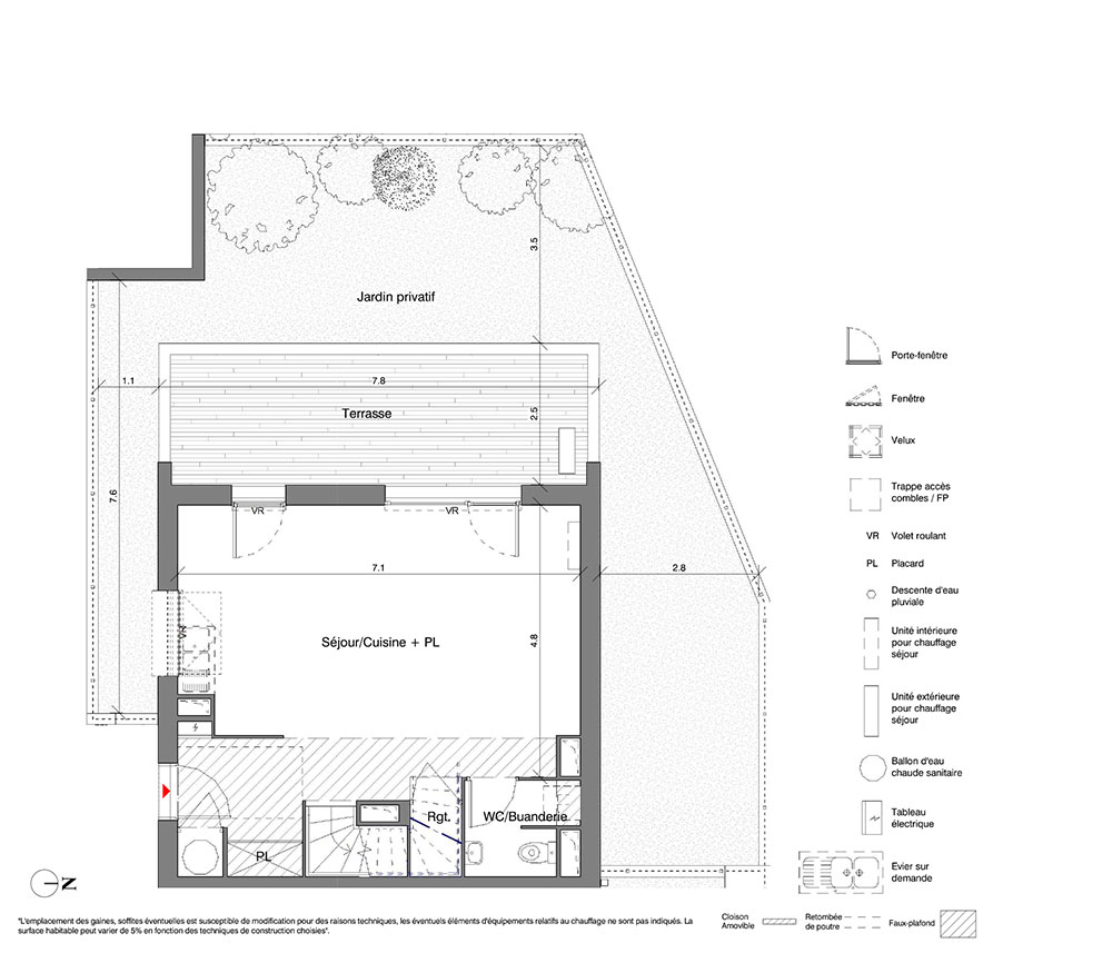
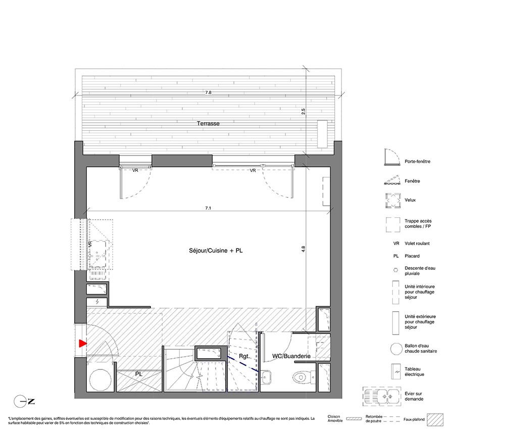
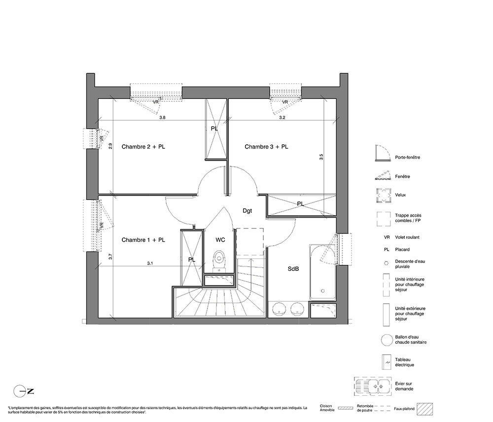
« Cœur Lardenne - Prix Maîtrisés » est un programme immobilier neuf qui est situé à Toulouse. 8 duplex neufs sont compris dans ce projet. Ils sont de type T4 et se prêtent aussi bien à une résidence principale ou secondaire qu'à un investissement locatif. Éligibles aux dispositifs Pinel et de loueur en meublé non professionnel (LMNP) Hors Bail commercial, ils seront livrés au 2e trimestre 2026.
Investissez malin !
Ce programme peut bénéficier de nombreux avantages financiers adaptés à votre projet immobilier neuf :
Je recherche un bien pour...





