Liaison VerteLiaison VerteLiaison Verte
Liaison Verte
Liaison Verte
Liaison Verte

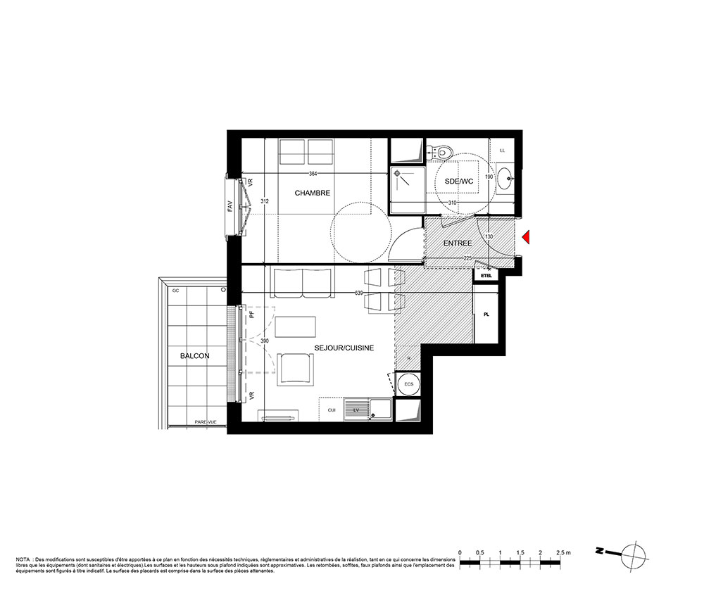
Appartement T2 n°1104 à Nangis (77370)

Prix : nous consulter

Nangis (77370)

Liaison Verte à Nangis

Appartement
T2 / F2 / 2 pièces
40,8 m² habitables
1er étage
Nord
1 chambre
Parking extérieur
Balcon 5 m²

À noter

  • Nangis
  • Résidence principale/secondaire
  • Investissement locatif
  • Votre suivi personnalisé Peterson.fr
  • Garanti prix direct promoteur

Prestations et équipements

Parking
Terrasse / Balcon

À propos du programme

Découvrez notre résidence située dans la charmante commune de Nangis en Seine-et-Marne : un cadre de vie idéal, alliant confort moderne et sérénité. Ce programme neuf offre des appartements du 2 au 4 pièces, tous dotés d'un espace extérieur privatif, pour profiter pleinement de chaque saison.Les atouts de la résidence : - Des logements lumineux, pensés pour votre confort - Des espaces extérieurs privatifs pour chaque appartement : balcon ou jardin Pourquoi habiter à Nangis ? - Une accessibilité optimisée avec la gare à 5 min à pied desservie par la ligne P du Transilien, reliant Paris Gare de l'Est en environ 45 minutes, et Provins en 35 minutes. - Une commune où tout est à portée de main : le centre-ville et ses commerces se trouvent à 8 minutes à pied de la résidence. Qualité de vie : - Parc du Château de Nangis, un espace verdoyant pour vos promenades. - Nombreux sentiers et zones naturelles pour se ressourcer. N'attendez plus pour devenir propriétaire !

Accédez à notre page dédiée au programme "Liaison Verte" pour tout savoir sur la résidence, ses prestations et son quartier.

Autres biens disponibles

Tout savoir sur le programme neuf « Liaison Verte »

Nangis est le berceau du programme immobilier neuf « Liaison Verte ». 18 appartements neufs sont compris dans ce projet. À l'heure actuelle, 18 d'entre eux restent toujours sur le marché. Allant du T2 au T4, ils s'adressent autant aux intéressés par l'investissement locatif qu'aux personnes à la recherche d'une résidence principale ou secondaire. Il est pertinent de noter qu'ils sont éligibles aux dispositifs de droit commun et LMNP (loueur en meublé non professionnel) hors bail commercial.

Appartement 2 pièces
5 biens disponibles
N° de lot
Surface
Commodités
Étage
Exposition
Lot n°11031103
42 m²
Parking, Terrasse / Balcon
Étage 1
Exposition : NordNord
Lot n°12031203
42 m²
Parking
Étage 2
Exposition : NordNord
Lot n°12041204
41 m²
Parking
Étage 2
Exposition : NordNord
Lot n°13041304
38 m²
Parking
Étage 3
Exposition : NordNord
Lot n°13031303
40 m²
Parking
Étage 3
Exposition : NordNord
N° de lot
Surface
Commodités
Étage
Exposition
Lot n°11011101
62 m²
Parking, Terrasse / Balcon
Étage 1
Exposition : SudSud
Lot n°12021202
63 m²
Parking, Terrasse / Balcon
Étage 2
Exposition : SudSud