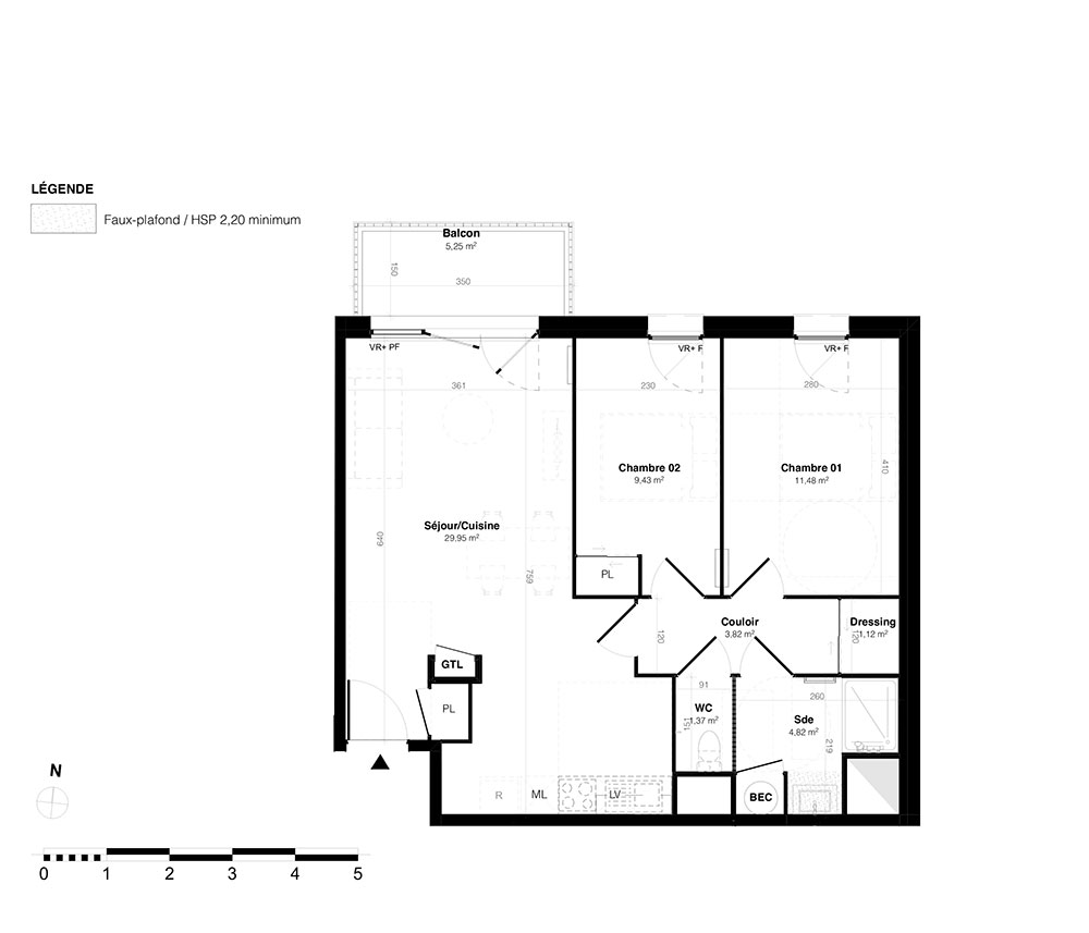
Appartement T3 n°A109 à Perros-Guirec (22700)
Prix : nous consulter
Ondalia à Perros-Guirec
À noter
- Perros-Guirec
- Livraison 4ème trimestre 2027
- Votre suivi personnalisé Peterson.fr
- Garanti prix direct promoteur
Prestations et équipements
À propos du programme
La résidence Ondalia s’inspire des codes élégants des longères bretonnes pour offrir un cadre de vie unique, à la fois chaleureux et contemporain.
Les lignes épurées, ponctuées de matériaux nobles comme le bois et l’ardoise, créent une harmonie naturelle avec l’environnement. Chaque appartement bénéficie d’une exposition sud pour une luminosité optimale et d’un espace extérieur privatif (balcon, terrasse ou jardin) invitant à profiter pleinement des beaux jours.
Les intérieurs sous pente apportent un charme indéniable, tandis que les larges baies vitrées ouvrent sur des vues dégagées. Pensé pour le confort, Ondalia propose un stationnement privatif, un local à vélos et la sérénité d’une résidence sécurisée.
Perros-Guirec
En travaux

Accédez à notre page dédiée au programme "Ondalia" pour tout savoir sur la résidence, ses prestations et son quartier.
Autres biens disponibles
Venez explorer « Ondalia »
Perros-Guirec est le berceau du programme immobilier neuf « Ondalia ». Ce projet propose toujours 32 de ses 32 appartements neufs qui ne sont pas encore réservés. Ce programme vous offre des logements de type T2 et T3. Fin décembre 2027, les biens seront livrés et sachez qu'ils sont éligibles au dispositif de droit commun.



