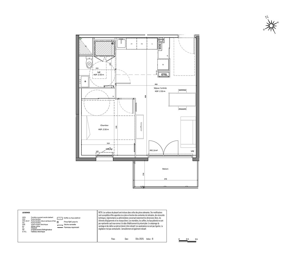
Appartement T2 n°606 à Lormont (33310)
Prix : nous consulter
Programme neuf n°40250 à Lormont
À noter
- Lormont
- Livraison 4ème trimestre 2027
- Résidence principale/secondaire
- Investissement locatif
- Votre suivi personnalisé Peterson.fr
- Garanti prix direct promoteur
Prestations et équipements
À propos du programme
À la fois porte d’entrée de la métropole bordelaise et véritable ville à part entière, Lormont offre un équilibre rare entre urbanité et nature. Bordée par la Garonne et adossée aux coteaux boisés, la commune bénéficie d’un cadre de vie vert, ponctué de parcs, promenades et belvédères. Elle séduit autant les familles que les jeunes actifs par son accès direct à Bordeaux via le tramway A, ses infrastructures scolaires et sportives modernes, et la richesse de sa vie locale : marchés, médiathèque, espaces culturels, associations et événements de quartier. Fidèle à son histoire industrielle et ouvrière, Lormont s’est métamorphosée en une ville dynamique et inclusive, ouverte à l’innovation urbaine et à la mixité. C’est aujourd’hui une adresse idéale pour ceux qui cherchent à devenir propriétaires tout en profitant d’un cadre de vie connecté.
Lormont
En travaux

Accédez à notre page dédiée au programme "Programme neuf n°40250" pour tout savoir sur la résidence, ses prestations et son quartier.

