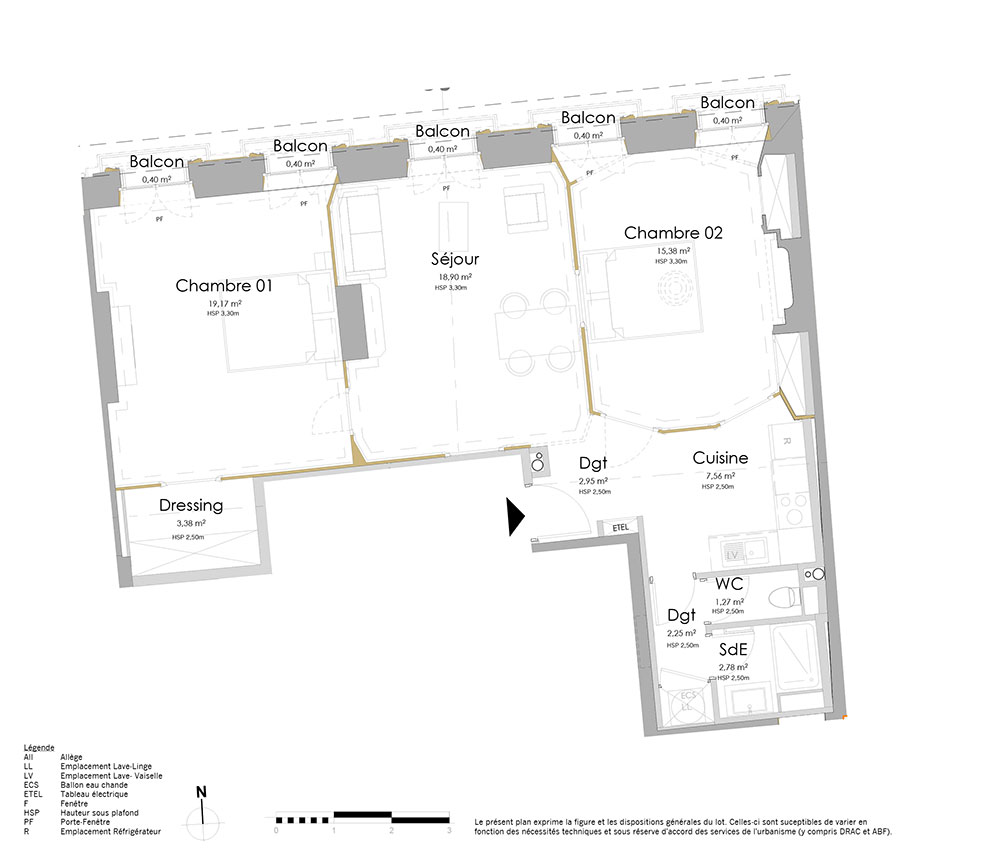
Appartement T3 n°404 à Bordeaux (33000)
Prix : nous consulter
Arabesque à Bordeaux
À noter
- Bordeaux
- Livraison 2ème trimestre 2028
- Investissement locatif
- Votre suivi personnalisé Peterson.fr
- Garanti prix direct promoteur
Ce programme propose des biens éligibles aux dispositifs de défiscalisation suivant :
Prestations et équipements
À propos du programme
Tout proches, le Grand-Théâtre et l’Auditorium résonnent des plus belles représentations, tandis que le Cinéma Le Français et les théâtres Molière et Femina célèbrent l’éclectisme artistique. La rue Sainte-Catherine s’illustre par son effervescence, alors que le Cours de l’Intendance déploie de prestigieuses enseignes, à l’image des boutiques Louis Vuitton, Cartier, Repetto, Poiray ou encore Hermès. Enfin, à quelques encablures, les venelles pavées du quartier Saint-Pierre ouvert sur la Garonne foisonnent de restaurants réputés et de boutiques branchées. Les 4 lignes de tram sont accessibles à 300m à pied, 4 parkings publics sont également distants de moins de 500m d'ARABESQUE

Accédez à notre page dédiée au programme "Arabesque" pour tout savoir sur la résidence, ses prestations et son quartier.
Autres biens disponibles
Venez découvrir « Arabesque »
« Arabesque » vient accroître le parc immobilier neuf de Bordeaux. On peut trouver dans ce projet 11 duplex et appartements neufs. 11 de ces derniers sont, quant à eux, encore sur le marché. De type T1, T1 bis, T2 et T3, ils conviendront à un investissement locatif. Les biens sont éligibles au dispositif Malraux et seront livrés au deuxième trimestre 2028.





