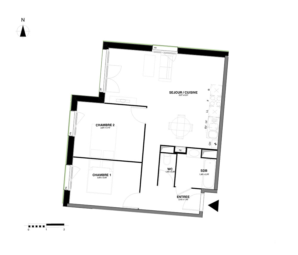
Appartement T3 n°B07 à Carbon-Blanc (33560)
Prix : nous consulter
Domaine Lafontaine à Carbon-Blanc
À noter
- Carbon-Blanc
- Livraison 4ème trimestre 2027
- Résidence principale/secondaire
- Investissement locatif
- Votre suivi personnalisé Peterson.fr
- Garanti prix direct promoteur
Prestations et équipements
À propos du programme
Conçue par l'atelier SOHO Aquitaine, la résidence adopte une architecture contemporaine et discrète parfaitement intégrée dans son environnement naturel. Organisée en îlots à taille humaine, elle propose un choix rare entre maisons individuelles de 2 à 3 chambres et appartements du 2 à 3 pièces, répartis dans de petits bâtiments d'un seul étage. Les façades aux teintes douces, les volets aluminium et les toitures en tuiles grand moule participent à l'élégance d'ensemble, offrant une esthétique intemporelle et durable. Un cadre de vie verdoyant et serein Pensé comme un havre de tranquillité, le domaine offre un environnement paysager exceptionnel, avec plus de 200 arbres plantés, dont des fruitiers, des haies bocagères et des massifs boisés. Ce cadre favorise à la fois la biodiversité et les moments de détente partagés, grâce à un espace engazonné commun et un composteur de quartier. À l'intérieur, les logements privilégient confort et fonctionnalité : séjours lumineux, double orientation pour les appartements, jardins privatifs ou balcons, prestations soignées, chauffage individuel et nombreux rangements. Deux locaux vélos complètent l'ensemble pour encourager une mobilité douce au quotidien.
Carbon-Blanc
En travaux

Accédez à notre page dédiée au programme "Domaine Lafontaine" pour tout savoir sur la résidence, ses prestations et son quartier.
Autres biens disponibles
« Domaine Lafontaine » : le nouveau projet immobilier se dévoile
« Domaine Lafontaine » est un programme immobilier neuf qui est situé à Carbon-Blanc. Ce nouveau programme comprend, sur un total de 45 appartements neufs, 45 lots encore disponibles. Ils sont de type T2, T3 et T4 et pourront être occupés au titre de résidence principale ou secondaire mais se prêtent également à l'investissement locatif. Il est important de noter que les biens sont éligibles au dispositif de droit commun. Pour investir les lieux, cela sera possible à la fin de l'année 2027.



