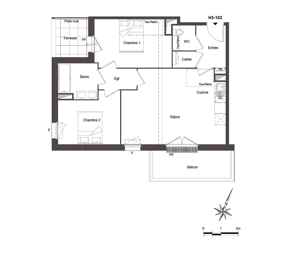
Appartement T3 n°H3102 à Lormont (33310)
Prix : nous consulter
Connexion - Bat - H3 à Lormont
À noter
- Lormont
- Livraison 3ème trimestre 2027
- Résidence principale/secondaire
- Investissement locatif
- Votre suivi personnalisé Peterson.fr
- Garanti prix direct promoteur
Prestations et équipements
À propos du programme
Lormont
En travaux

Accédez à notre page dédiée au programme "Connexion - Bat - H3" pour tout savoir sur la résidence, ses prestations et son quartier.
Autres biens disponibles
L'essentiel du programme neuf « Connexion - Bat - H3 »
« Connexion - Bat - H3 » est un projet immobilier dans le neuf situé à Lormont. Ce projet comporte 8 appartements neufs qui s'ajoutent au parc immobilier local. 8 d'entre eux sont encore disponibles. De type T3, ils se destinent autant aux intéressés par l'investissement locatif qu'aux personnes à la recherche d'une résidence principale ou secondaire. Fin septembre 2027, les logements seront mis à disposition des résidents. Par ailleurs, notez qu'ils sont éligibles au dispositif de droit commun.
