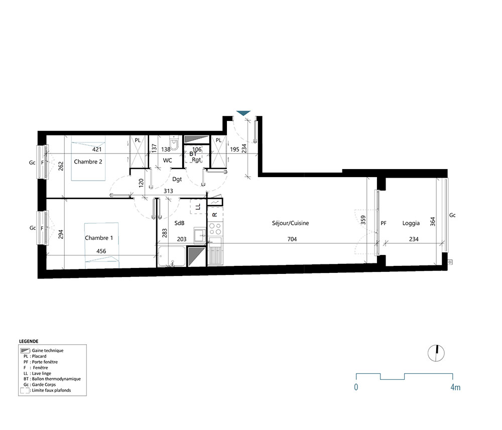
Appartement T3 n°205 à Albi (81000)
Prix : nous consulter
Residence Lagarde à Albi
À noter
- Albi
- Livraison 4ème trimestre 2028
- Résidence principale/secondaire
- Investissement locatif
- Votre suivi personnalisé Peterson.fr
- Garanti prix direct promoteur
Prestations et équipements
À propos du programme
Découvrez la Résidence Lagarde, un programme immobilier neuf idéalement situé à Albi (81 000), à seulement quelques minutes à pied du centre historique d'Albi, classé au patrimoine mondial de l'UNESCO. Cette résidence combine confort moderne et cadre de vie privilégié. La Résidence Lagarde propose 22 appartements lumineux, du 2 pièces, parfaits pour jeunes actifs, couples ou investisseurs locatifs, au 3 et 4 pièces, idéals pour familles ou primo-accédants et pensés pour ceux qui recherchent espace et confort. La Résidence Lagarde profite d'une adresse idéale à proximité des commerces, écoles et services accessibles à pied. Rejoignez Toulouse, en moins d'une heure par la route ou le train pour profiter de son bassin d'emploi et son attractivité culturelle. Que vous cherchiez à devenir propriétaire, à profiter d'un logement confortable en centre-ville ou à investir dans un bien attractif à Albi contactez-nous!
Albi
En travaux

Accédez à notre page dédiée au programme "Residence Lagarde" pour tout savoir sur la résidence, ses prestations et son quartier.
Autres biens disponibles
Découvrez le programme neuf « Résidence Lagarde »
Albi bénéficie du projet immobilier neuf « Résidence Lagarde ». Ce nouveau projet compte, sur un total de 14 appartements neufs, 14 lots encore disponibles. De type T2, T3 et T4, ils s'adressent aux acheteurs intéressés par l'investissement Investissement locatif, Résidence secondaire, Résidence principale comme aux personnes en quête de leur résidence Investissement locatif, Résidence secondaire, Résidence principale. Les logements sont éligibles aux dispositifs de droit commun et Jeanbrun et seront mis à disposition au 2e trimestre 2028.

