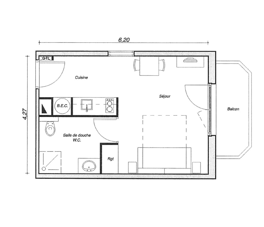
Appartement T1 n°212 à Bagnoles de l'Orne Normandie - Saint-Michel-des-Andaines (61600)
Prix : nous consulter
B'O Cottage à Bagnoles de l'Orne Normandie - Saint-Michel-des-Andaines
À noter
- Bagnoles de l'Orne Normandie - Saint-Michel-des-Andaines
- 2ème trimestre 2013
- Investissement locatif
- Votre suivi personnalisé Peterson.fr
- Garanti prix direct promoteur
Ce programme propose des biens éligibles aux dispositifs de défiscalisation suivant :
À propos du programme
Intégrée dans un environnement naturel d'exception aux nombreux atouts touristiques : casino, lac, restaurants étoilés, quartier "Belle Époque", Thermes, Château, hippodrome, golf...
Un positionnement bien-être et thermal, avec un accès pédestre direct permettant de relier les thermes B'O Resort Thermal & Spa situés à 300m.
Des prestations haut de gamme dédiées au confort et à la détente avec un véritable complexe de loisirs : bassin aqualudique adultes et enfants, solarium, hammam, club enfants, espace-petit déjeuner...
158 appartements de standing, du studio à la suite familiale, prolongés par un espace extérieur.
Bagnoles de l'Orne Normandie - Saint-Michel-des-Andaines
Livré
Avantages fiscaux

Accédez à notre page dédiée au programme "B'O Cottage" pour tout savoir sur la résidence, ses prestations et son quartier.





