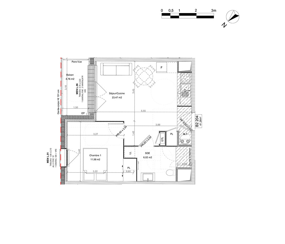
Appartement T2 n°B2204 à Bretteville-sur-Odon (14760)
Prix : nous consulter
Coeur des Crêtes PA7 à Bretteville-sur-Odon
À noter
- Bretteville-sur-Odon
- Livraison 1er trimestre 2027
- Résidence principale/secondaire
- Investissement locatif
- Votre suivi personnalisé Peterson.fr
- Garanti prix direct promoteur
Prestations et équipements
À propos du programme
Le « Cœur des crêtes » est un ensemble architectural harmonieux composé de 3 immeubles résidentiels, 2 immeubles de bureaux et des commerces en rez-de-chaussée, s'articulant autour d'une place centrale conviviale. Projet de 75 logements conçu avec une attention particulière à l'intégration urbaine et à la qualité de vie des futurs résidents, chaque bâtiment a été pensé pour offrir des espaces de vie lumineux, fonctionnels et confortables, tout en respectant les normes environnementales les plus strictes. Les balcons et terrasses sont spacieux et optimisés pour profiter d’espaces extérieurs privés tout en maximisant l'entrée de lumière naturelle.
Bretteville-sur-Odon
En travaux

Accédez à notre page dédiée au programme "Coeur des Crêtes PA7" pour tout savoir sur la résidence, ses prestations et son quartier.
Autres biens disponibles
Le projet « Cœur des Crêtes PA7 » s'intègre dans le marché immobilier local
Bretteville-sur-Odon abrite le projet immobilier neuf « Cœur des Crêtes PA7 ». On y trouve 43 appartements neufs et 42 d'entre eux sont toujours disponibles. De type T2 et T3, ils s'adapteront à l'investissement locatif et peuvent également servir de résidence principale ou secondaire. Les biens sont éligibles au dispositif de droit commun et sont attendus au premier trimestre 2027.





